- Главная
- Городская элитная недвижимость
- Купить городскую недвижимость
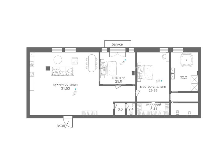
- 4-х комнатная квартира, 258 м² В жилом комплексе «Венский дом»
ID 13399
4-х комнатная квартира, 258 м² В жилом комплексе «Венский дом»
ст. Киевская
1-й Неопалимовский переулок, 8
258 м²
4 комнаты
11 этаж
с мебелью
с отделкой
в пределах садового кольца
Описание
Предлагается роскошный четырехкомнатный пентхаус площадью 258 кв.м. в ЖК "Венский дом". Планировка: кухня-столовая, гостиная с действующим камином, кабинет с выходом на террасу, две спальни со своими санузлами и гардеробными (в главной спальне санузел оборудован сауной), гостевой санузел, прихожая, предусмотрен собственный зимний сад. В квартире выполнен ремонт в стиле "Английская классика" с применением натуральных дорогостоящих отделочных материалов. Из окон открываются великолепные панорамные виды на город. Предусмотрено два машиноместа в подземном паркинге. Свободная продажа. ЖК "Венский дом" - один из лучших элитных домов столицы. Комплекс состоит из 2 жилых корпусов переменной этажности. Оба корпуса объединены друг с другом просторным внутренним двором. На огороженной территории дома разбит парк площадью 25 соток с фонтанами, дорожками с подогревом и прекрасным ландшафтным дизайном.
Первый этаж
кухня-столовая, гостиная, кабинет, спальня с гардеробной и санузлом, прихожая, гостевой санузел, сауна, терраса
Все характеристики
| Основные | |
|---|---|
| Площадь здания | 258 м² |
| Этаж | 11 Этаж |
| Количество комнат | 4 комнаты |
| Кол-во спален | 2 спальни |
| Кол-во санузлов | 3 санузла |
| Отделка | |
| Отделка | с отделкой |
| Наличие мебели | с мебелью |
Венский дом
Общая информация
ЖК «Венский дом» — один из самых престижных жилых комплексов Москвы. Он успешно совместил в себе элегантность классического стиля с новейшими инженерными решениями. Комплекс находится в Хамовниках, рядом с Академией Художеств и консульским департаментом МИД.
Обзор
Жилой комплекс «Венский дом» состоит из ансамбля двух зданий переменной этажности, объединенных общим пространством благоустроенной придомовой территории. Двор отличается изысканной планировкой — он украшен большим фонтаном, уютной парковой зоной и позолоченной статуей Иоганна Штрауса, которая является копией знаменитой статуи композитора в Венском парке.
Жилое пространство дома
65 квартир комплекса площадью от 105 до 350 квадратных метров отличаются высокой комфортностью. Апартаменты наполнены светом и воздухом — высота потолков в квартирах составляет от 3,7 до 3,9 метров, а панорамные окна с трехкамерными стеклопакетами соответствуют просторным помещениям комнат. Каждая квартира имеет лоджию с безрамным остеклением. Фасады комплекса декорированы колоннами и лепниной, во внутренней отделке подъездных помещений преобладают гранитные панели и мозаичные панно. Пентхаусы ЖК «Венский дом» роскошны — просторные закрытые террасы позволяют владельцам квартир наслаждаться видами старой Москвы круглый год. Пятиуровневый пентхаус общей площадью 1846 метров имеет просторный бассейн под стеклянной крышей, холодильные помещения для хранения шуб, винный погреб, а также большую смотровую площадку, которая может быть использована для посадки вертолетов.
Инженерные системы
Дом оборудован централизованными системами вентиляции, кондиционирования и очистки воздуха. Водоснабжение ЖК «Венский дом» производится из независимой артезианской скважины. Оба здания оснащены скоростными бесшумными лифтами OTIS. Современная система «умный дом» позволяет владельцам роскошных апартаментов оптимизировать энергозатраты.
Безопасность
Жилой комплекс находится под круглосуточной охраной. Доступ во внутренний двор возможен только через пост системы безопасности. Въезд на подземную парковку осуществляется через КПП со шлагбаумом.
Инфраструктура
При проектировании были учтены потребности жильцов в объектах социальной инфраструктуры. Они могут посещать круглосуточный спортивный центр с бассейном, ресторан, химчистку-прачечную и салон красоты. Подземная парковка «Венского дома» рассчитан на 99 машино-мест. Прогулочная зона двора благоустроена каменными дорожками с подогревом и коваными скамейками.
Узнайте больше О жилом комплексе
Посмотрите информацию об инфраструктуре, истории и других объектах недвижимости.
ПодробнееРасположение
1-й Неопалимовский переулок, 8
оставьте заявку
Скачать презентацию в pdf
Похожие предложения
Охотный Ряд улица, 2
ст. Охотный ряд
5 мин
5 этаж
без отделки
без мебели
в пределах садового кольца
1-й Зачатьевский переулок, 5
ст. Парк культуры
7 мин
ст. Кропоткинская
7 мин
2 этаж
с отделкой
с мебелью
в пределах садового кольца
Озерковская набережная, 6
ст. Новокузнецкая
7 мин
ст. Третьяковская
10 мин
5 этаж
с отделкой
без мебели
в пределах садового кольца
Лужнецкая набережная, 2/4
ст. Лужники
13 мин
17 этаж
Ирина Трейвас
Управляющий партнёр


























