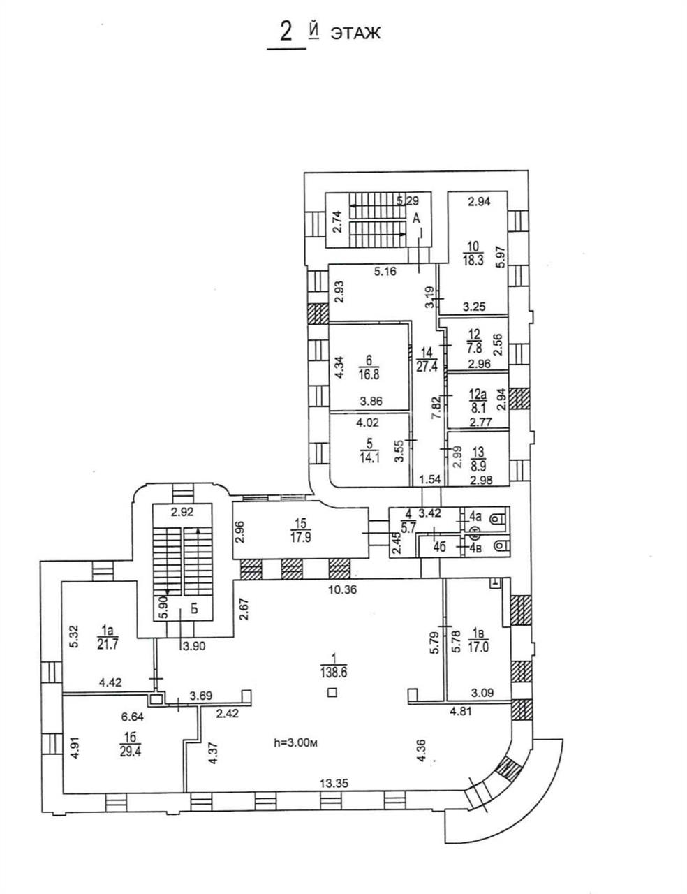
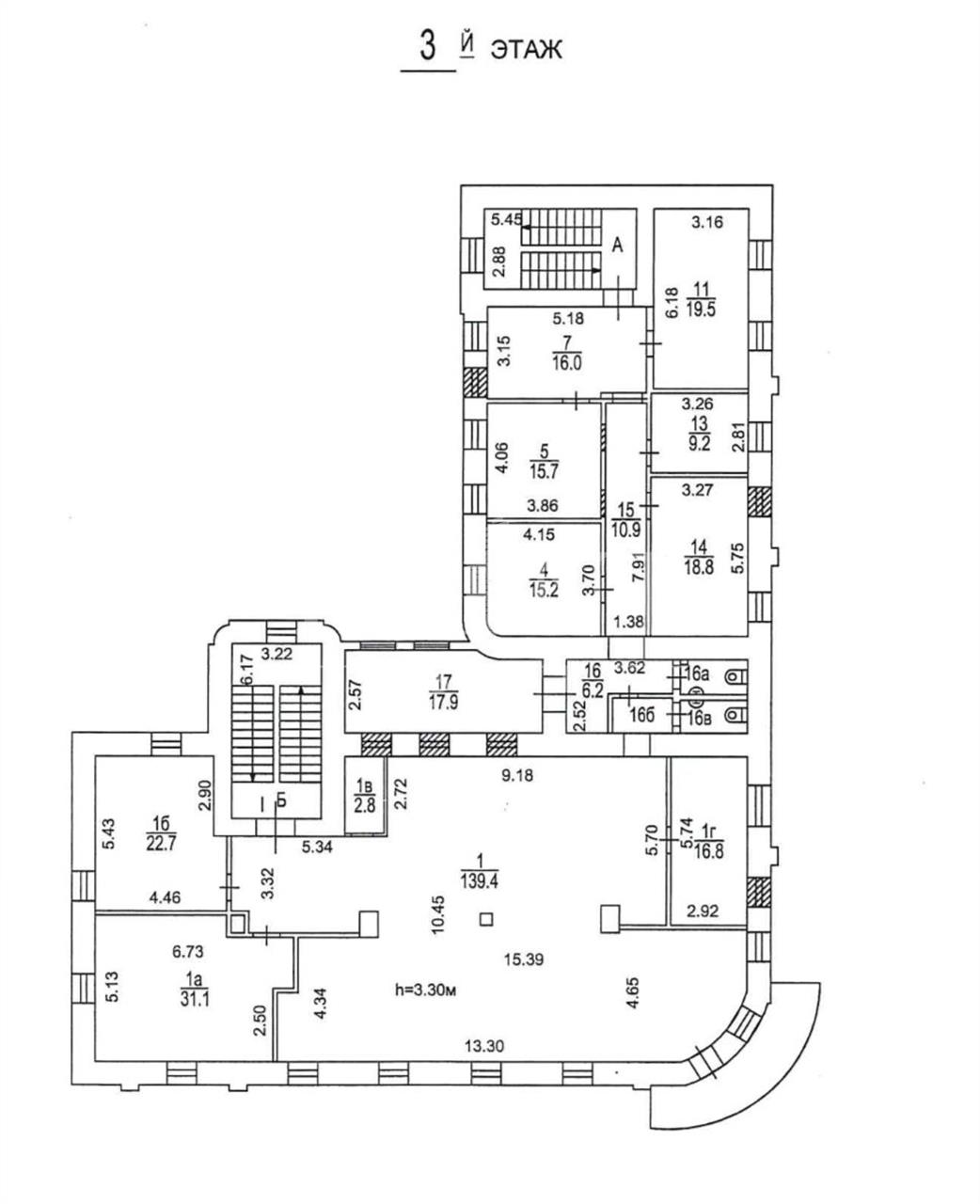
К продаже предлагается административное здание рядом с метро "Павелецкая". Общая площадь - 1782 кв. м., 1-5 этажи и подвал. Коридорно-кабинетная планировка этажей, внутри сделана отделка. Электрическая мощность: 5660 кВа. Есть огороженная охраняемая территория, организована наземная парковка. Лифтов нет. Вентиляция -естественная, кондиционирование -центральное, безопасность -система пожаротушений. Развитая инфраструктура: кафе, обмен валюты, полиграфия, рекламные мастерские, автосервис, автомойка. Удобная локация: выезд на Дербеневскую наб., ТТК, Садовое кольцо. Высокий пешеходный и автомобильный трафик.
оставьте заявку
Похожие предложения
Ирина Трейвас
Управляющий партнёр

















