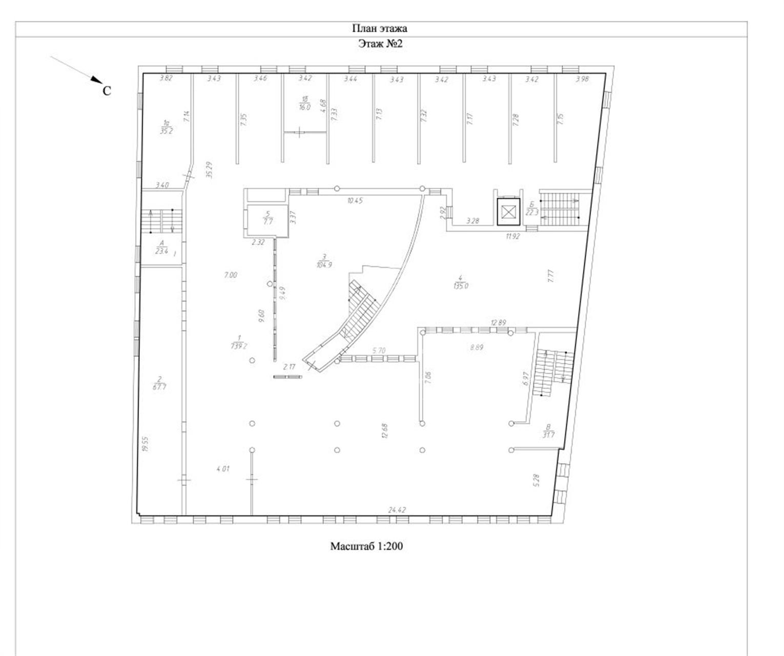
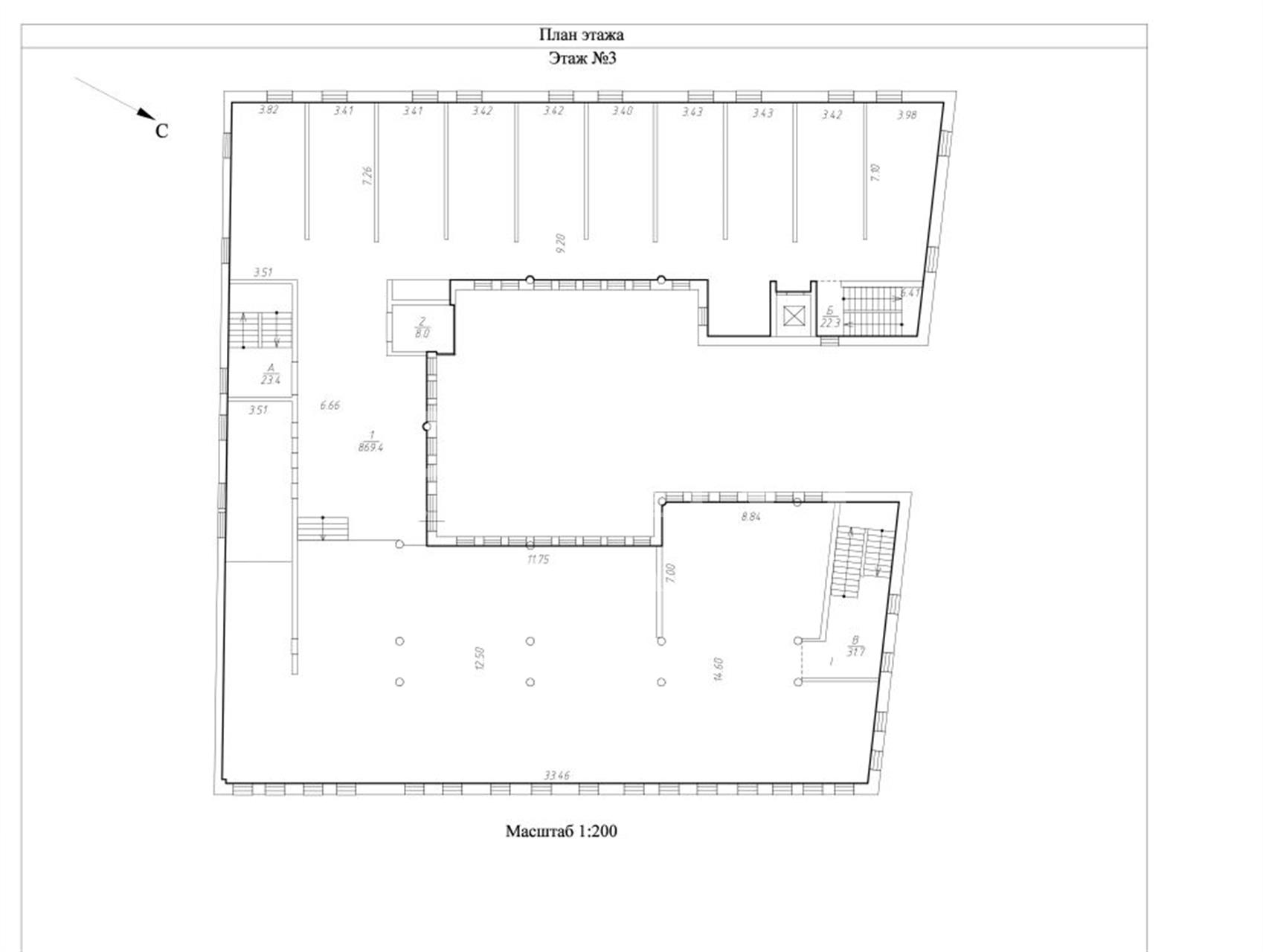
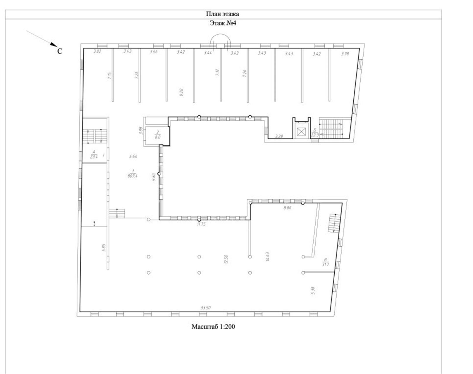
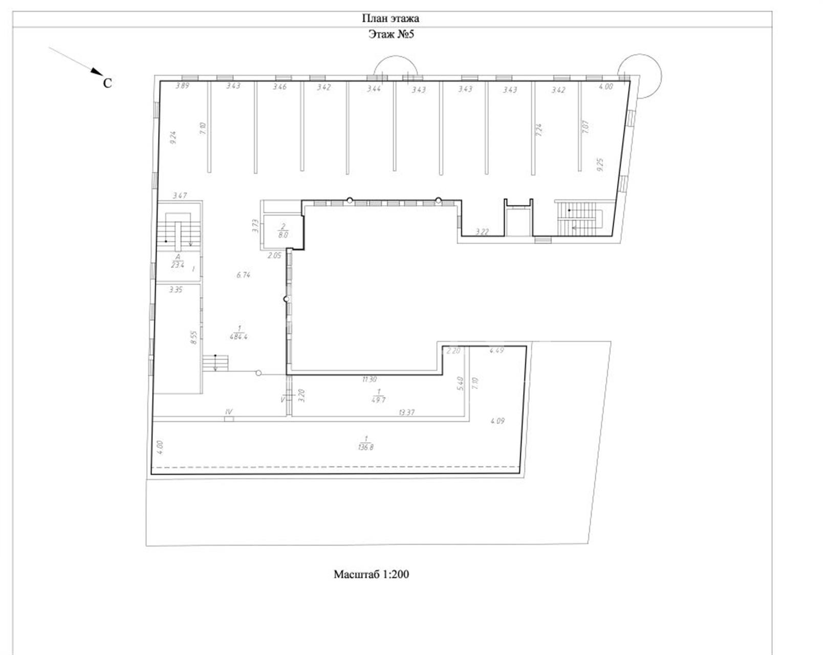
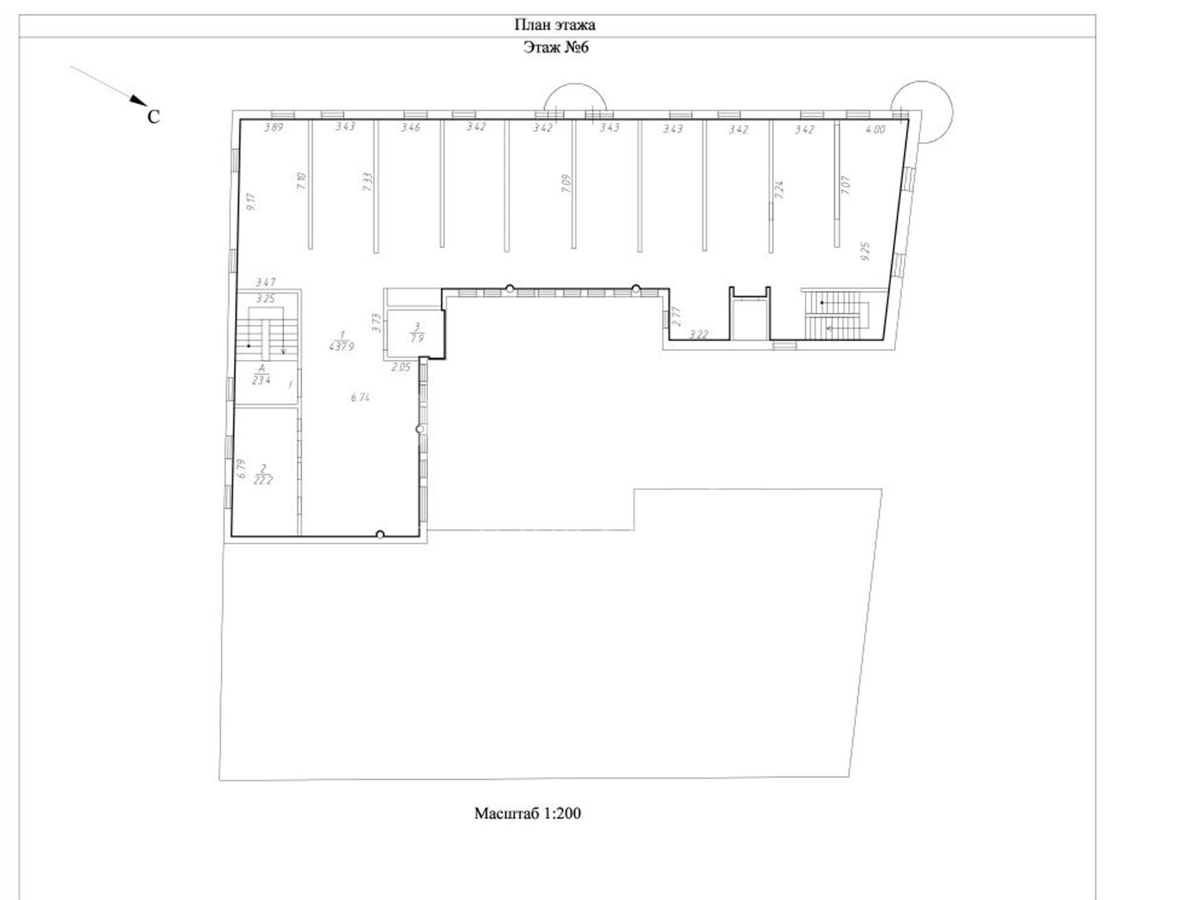
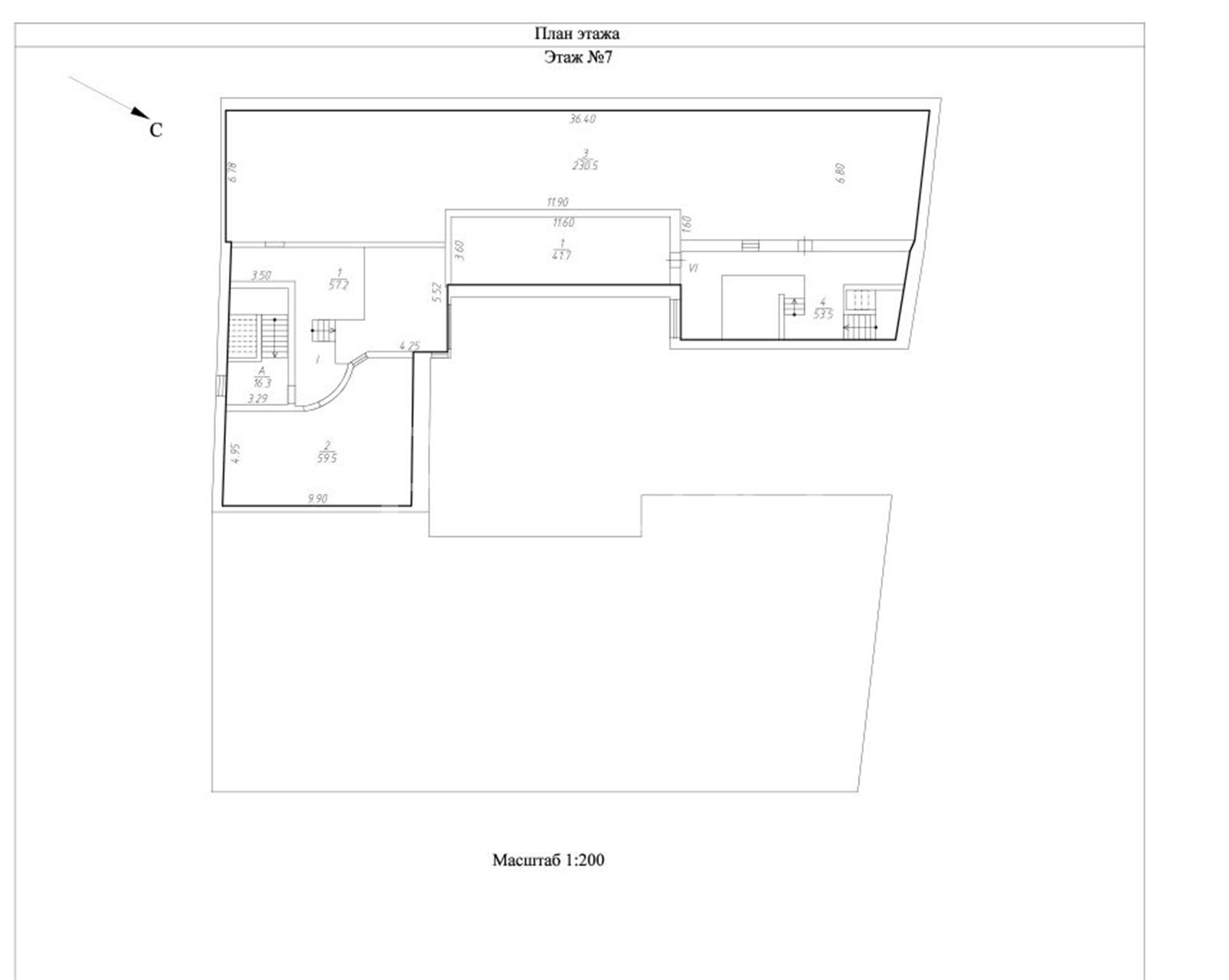
Предлагается на продажу особняк в Тверском районе. Хорошая транспортная доступность, до метро "Менделеевская" - 113 метров, до метро "Новослободская" - 214 метров. В предмет продажи не входят торговые помещения, расположенные на части 1-ого этажа и подвала. Предлагаемая площадь – 6 072 кв.м.: со 2-го по 7-й этажи. Состояние внутри под чистовую отделку, открытая планировка.В здании установлен лифт. Высота потолков до 3,5 метров. Земельный участок - в собственности. Виды разрешенного использования ЗУ: объекты размещения гостиниц и прочих мест временного проживания. Здание не является ОКН, арендаторов на верхних этажах нет. При необходимости, можно выкупить помещения на 1-м этаже (обсуждается индивидуально). Продажа объекта по ДКП, цена указана без учета НДС.
оставьте заявку
Похожие предложения
В бизнес центре «Porta Plaza (строение 2)»
Ирина Трейвас
Управляющий партнёр










