- Главная
- Коммерческая недвижимость
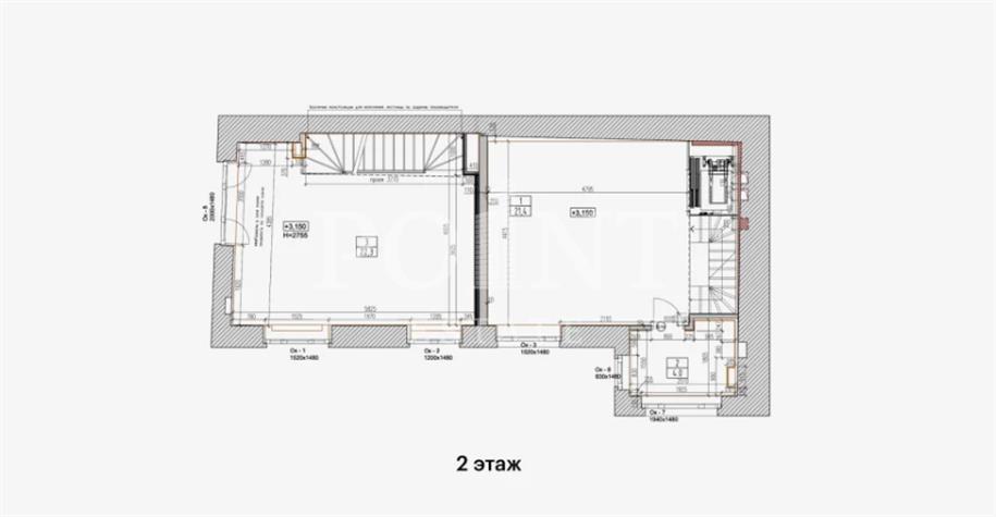
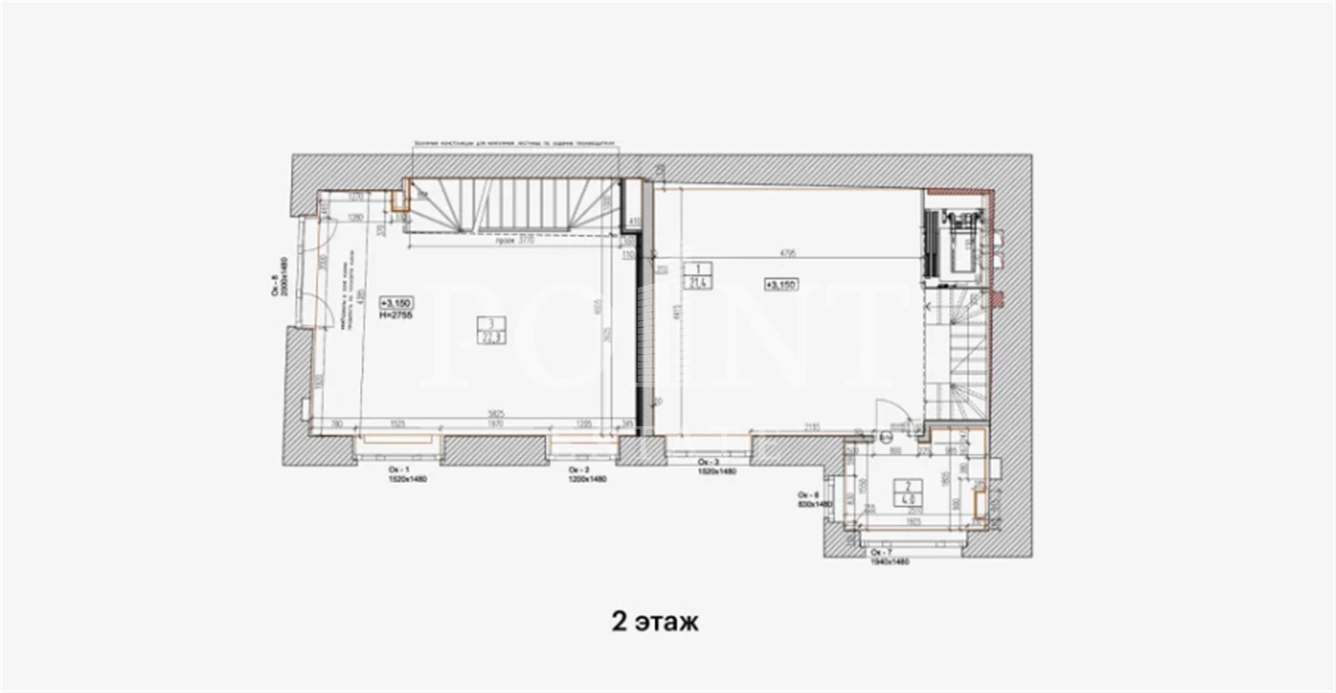
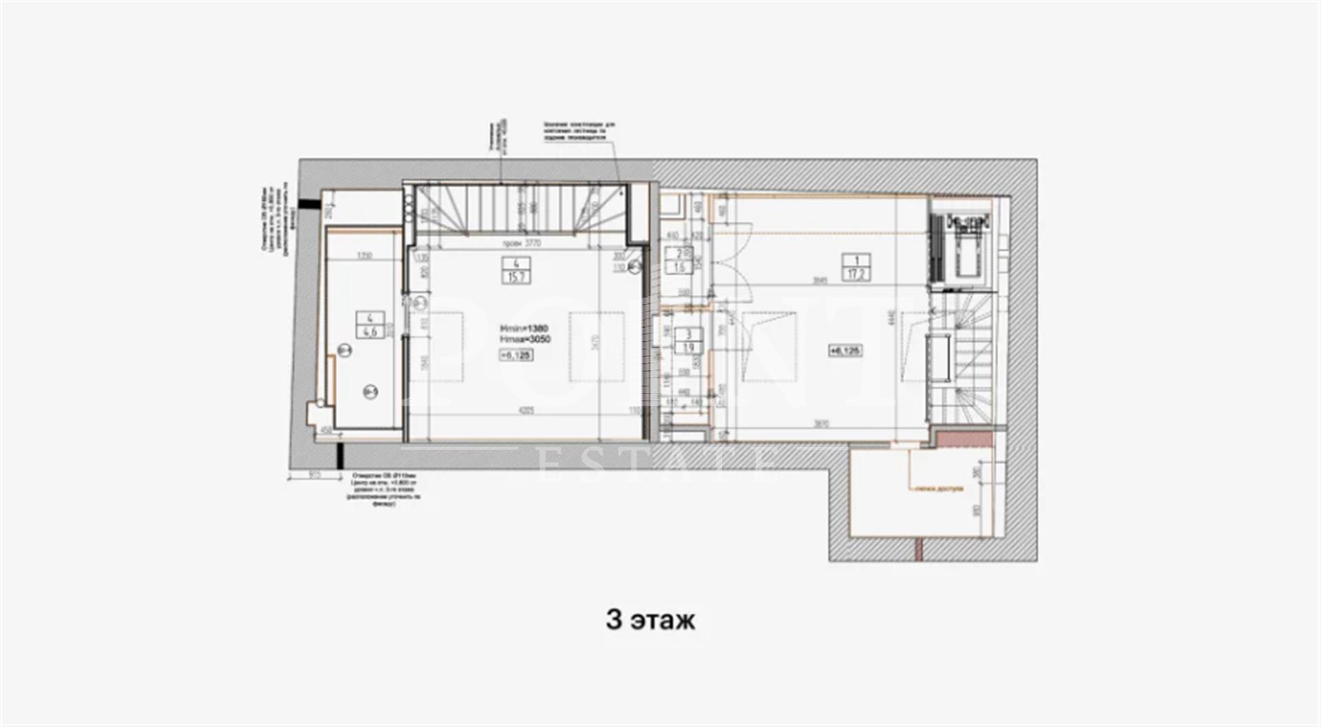
- Коммерческая недвижимость романов переулок, 3с2
коммерческая недвижимость
Романов переулок, 3с2
коммерческая недвижимость
Романов переулок, 3с2
ст. Арбатская 5 мин ст. Смоленская 8 минРасположение
оставьте заявку
Оставьте заявку на консультацию, и мы перезвоним вам в ближайшее время
































