- Главная
- Коммерческая элитная недвижимость
- Купить коммерческую недвижимость
- Офис, 3945.5 м2 В бизнес центре «Lotos»
Описание
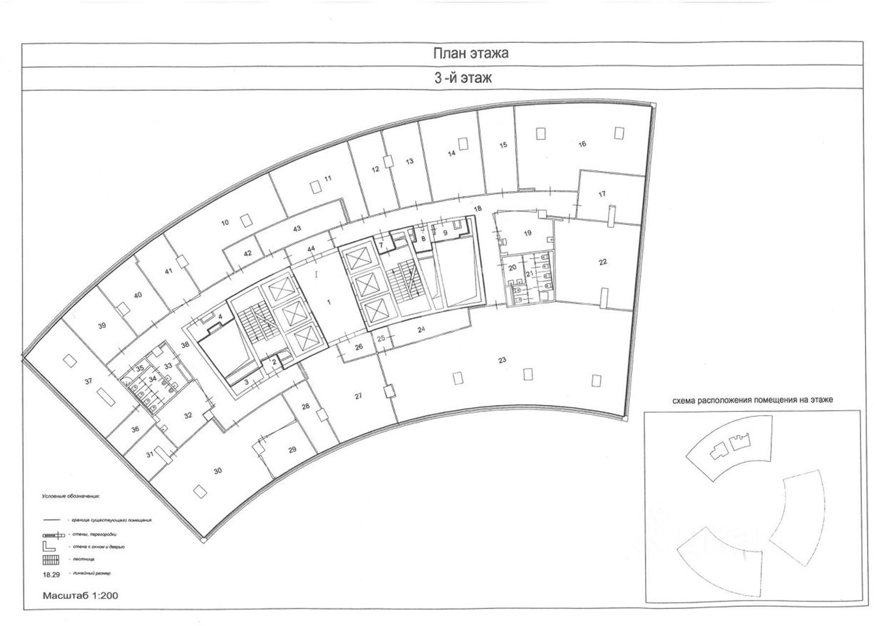
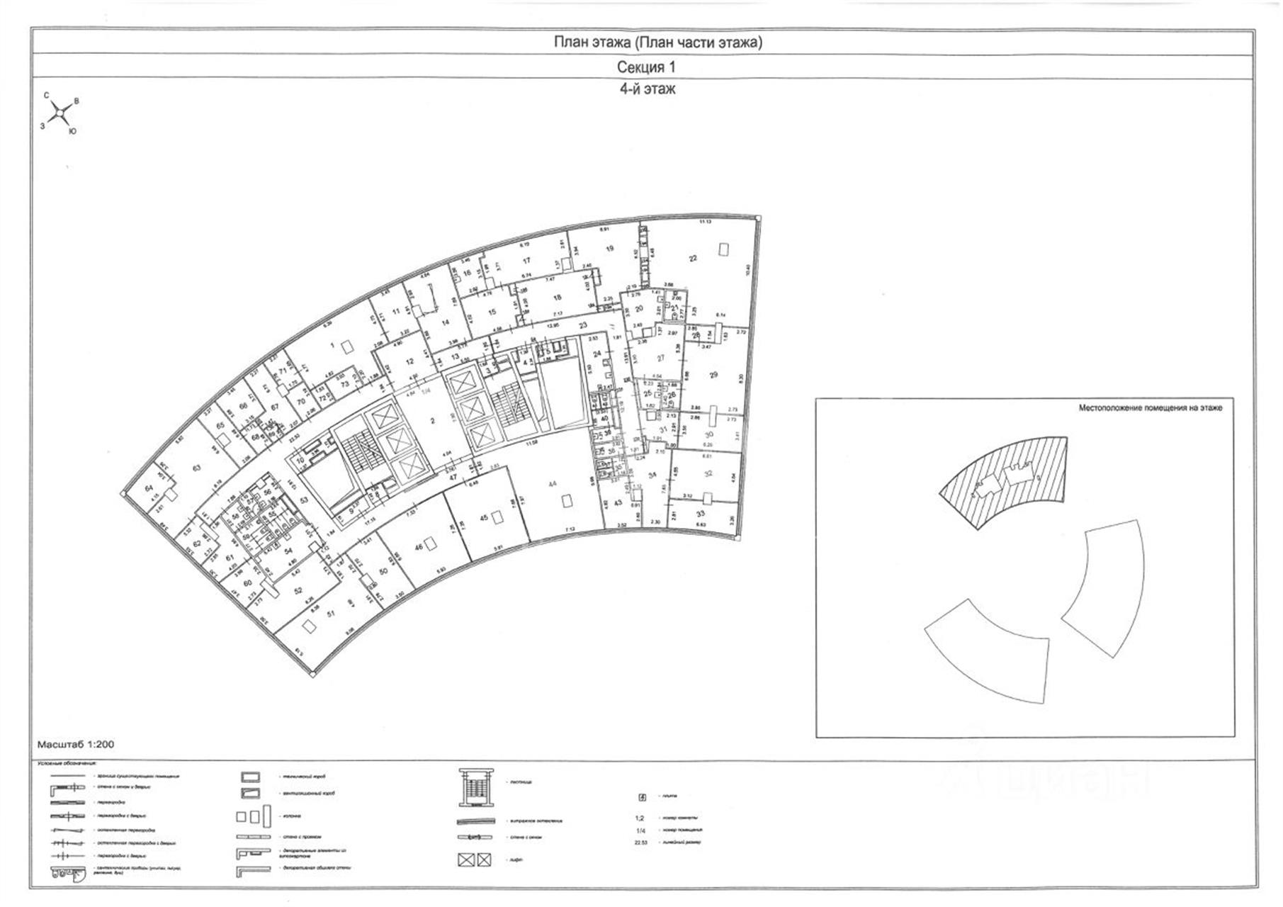
Продажа целиком 2-4 этажей в бизнес-центре "Lotos" класса А (корпус А). 2 этаж - 1 300,1 кв.м., 3 этаж - 1 360,2 кв.м., 4 этаж - 1 285,2 кв.м. Последний этаж представляет собой VIP этаж для руководства, где организованы кабинеты со своими приемными, зонами отдыха, кухнями и с/у. В офисных помещениях выполнен дизайнерский ремонт с применением качественных материалов. На каждом этаже организованы рабочие зоны (кабинеты и open-space), несколько переговорных, удобные кухонные зоны, ресепшен с зоной ожидания, с/у. Кабинеты имеют панорамное остекление. Во всех кабинетах выполнена разводка под рабочие места. В здание организован пропускной режим, доступ круглосуточный. На подземном паркинге к помещению возможно приобрести дополнительно 30 машиномест. Бизнес-центра расположен в шаговой доступности от метро "Нахимовский проспект" - 7 минут пешком, имеет удобные подъездные пути. Сложившаяся инфраструктура комплекса: супермаркет, аптека, бытовые услуги, салон красоты, кафе, отделение банка.
оставьте заявку
Скачать презентацию в pdf
Похожие предложения
Новая площадь, 10
ст. Кузнецкий мост
2 мин
ст. Лубянка
2 мин
Open Space
без мебели
под чистовую отделку
редевелопмент
Особняк
В особняке «Старый Арбат»
Калошин переулок, 4с1
ст. Кропоткинская
13 мин
ст. Смоленская
10 мин
ст. Арбатская
13 мин
Смешанная
с отделкой
в пределах садового кольца
Офис, 2700 м2
В бизнес центре «W-plaza»
Варшавское шоссе, 1с1-2
ст. Тульская
8 мин
новое предложение
5 этаж
Смешанная
частично с мебелью
с отделкой
Пресненский Вал улица, 27с8
ст. Белорусская
10 мин
ст. Улица 1905 года
14 мин
Смешанная
без мебели
с отделкой
офис с террасой
Ирина Трейвас
Управляющий партнёр


















