- Главная
- Коммерческая элитная недвижимость
- Купить коммерческую недвижимость
- Офис, 15709 м2 В бизнес центре «Смоленский 13»
ID 93012
Офис, 15709 м2 В бизнес центре «Смоленский 13»
Смоленский бульвар, вл.13с2
Описание
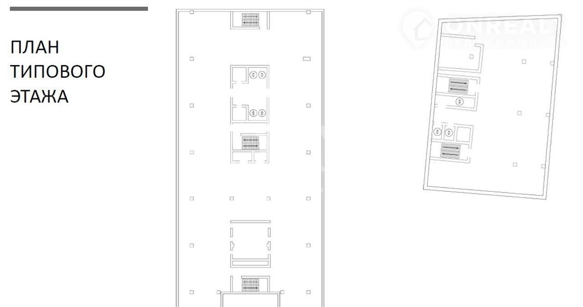
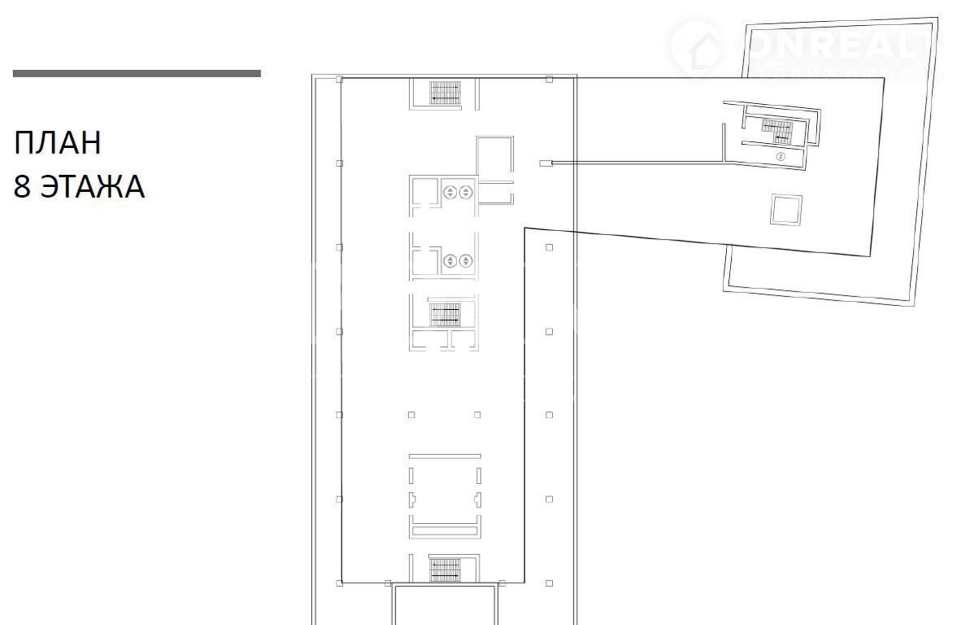
В продажу предлагаются два строения современного бизнес-центра "Смоленский 13", класса А. Здание включает 2 части (строение 2 и 5) с переходом на 6-8 этажах. Площадь типового этажа здания – 1 750 кв. м (1 290 кв. м в одном корпусе и 460 кв. м в другом), планировка открытая. Состояние отделки - shell&core. В каждом строении имеется свои входная и лифтовая группа - всего в объекте их несколько. Высота потолков «в чистоте» – 3,9 метра. Выделенная мощность - 1 989 кВт. В здании организованы открытые террасы, эксплуатируемая кровля, высококачественная отделка фасадов и общих зон. Из панорамных окон открываются виды на исторический центр Москвы, старые кварталы Хамовников, высотное здание МИДа и Садовое кольцо. В здании установлены 7-мь скоростных лифтов. Проведены все современные инженерные коммуникации: приточно-вытяжная вентиляция, центральное кондиционирование и система пожаротушения. Безопасность обеспечивается круглосуточной охраной, системой видеонаблюдения и пропускным доступ-контролем в здание. При здании имеется подземный паркинг на 203 машино-места и наземная парковка на 50 мест. Офисное здание находится в центре Москвы, на первой линии Садового кольца, в десяти минутах ходьбы от метро «Смоленская» и «Парк культуры». По соседству расположены элитные жилые комплексы («Венский дом», клубный дом Bunin), в непосредственном окружении сохранились исторические здания прошлых столетий. Прямой доступ на Смоленский бульвар, удобный выезд на набережную Москвы реки и крупные столичные магистрали обеспечивают великолепную транспортную доступность. Несколько минут займет дорога до Министерства иностранных дел или Правительства РФ, пятнадцать минут – до ММДЦ «Москва-Сити», Экспоцентра и Центра международной торговли.
оставьте заявку
Скачать презентацию в pdf
Похожие предложения
Омская улица, 14к3
ст. Рассказовка ,
6 мин
ст. Новопеределкино ,
7 мин
ст. Одинцово ,
9 мин
Офис, 16277 м2
В бизнес центре «Ходынская улица, 2с9»
Ходынская улица, 2с9
ст. Улица 1905 года
7 мин
1 этаж
Open Space
без мебели
без отделки
Ирина Трейвас
Управляющий партнёр










