- Главная
- Коммерческая элитная недвижимость
- Снять коммерческую недвижимость
- Офис, 623 м2 В административном здании «Новорязанская улица, 8Ас2»
ID 100033
Офис, 623 м2 В административном здании «Новорязанская улица, 8Ас2»
Новорязанская улица, 8Ас2
Описание
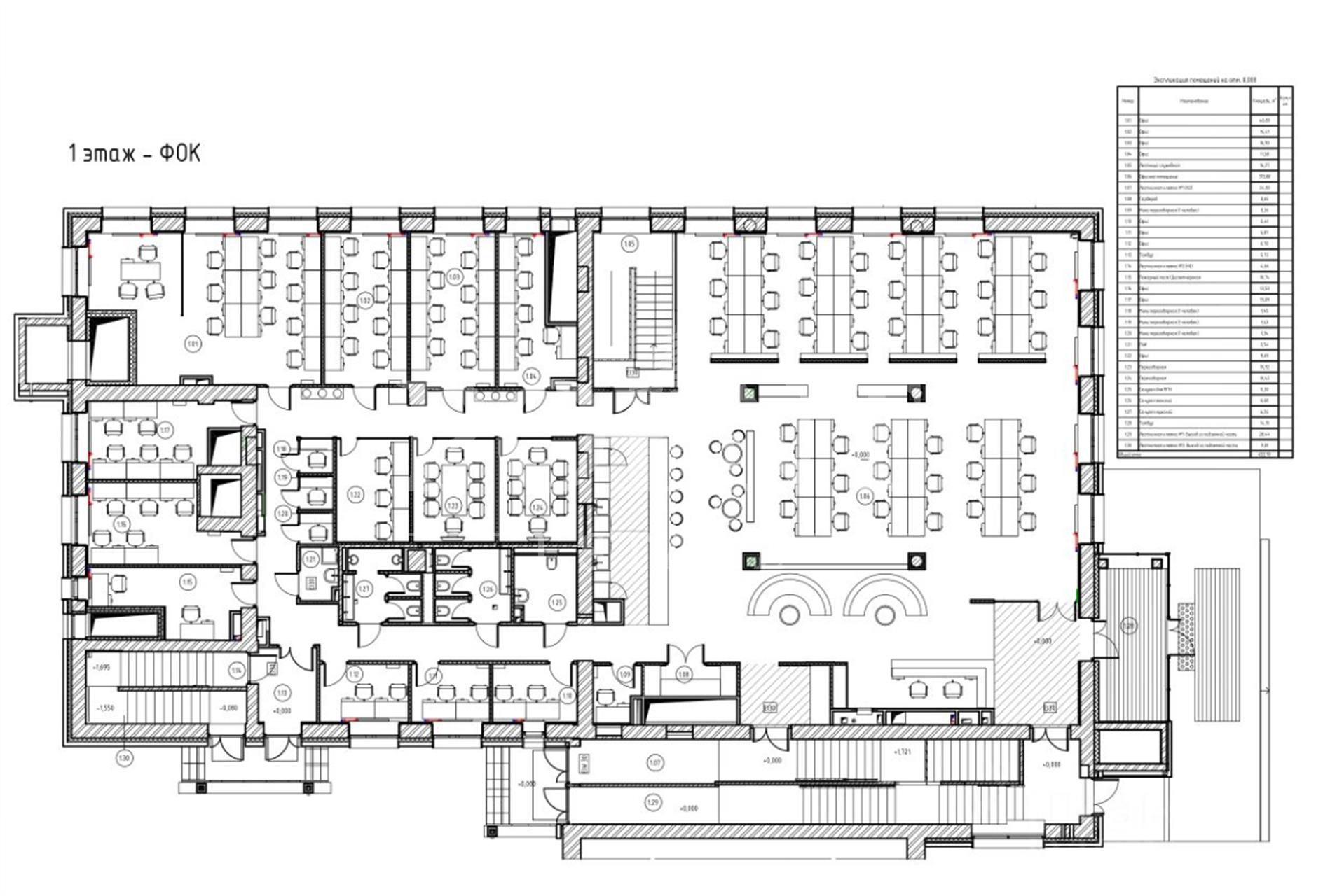
В аренду предлагается изолированный сервисный офис на 1-м этаже с отдельной входной группой. Общая площадь 623 кв.м., рассадка сделана на 100 рабочих мест. Выполнен дизайнерский ремонт помещений, пространства полностью меблированы и обустроены всей необходимой для работы орг.техникой, а том числе обустроены и укомплектованы кухонные зоны. Планировка: зона ресепшен, оборудованные рабочие места в кабинетах и зонах open-space, переговорные комнаты, сан. узел ,кухня , оборудованная всем необходимым, скайповые для индивидуальной работы, печатные станции. Возможно использование конференц зала с зоной кейтеринга в цокольном этаже. Высокие потолки до 4,5 метров, панорамные окна на две стороны. В ставку аренды включены все платежи: НДС, коммунальные и эксплуатационные платежи, мебель и техника, интернет/телефония, клининг, услуга персонального администратора, чай/кофе/вода. Дополнительно оплачивается только наземный паркинг. Здание расположен в шаговой доступности от м. "Комсомольская" и "Красные Ворота" в непосредственной близости от ключевых транспортных узлов и обширной инфраструктуры центра города.
оставьте заявку
Скачать презентацию в pdf
Похожие предложения
Офис, 541 м2
В административном здании «Рассвет»
Столярный переулок, 3с13
ст. Улица 1905 года
6 мин
ст. Краснопресненская
8 мин
новое предложение
3 этаж
Смешанная
без мебели
с отделкой
Офис, 698 м2
В бизнес центре «Квадрат»
Верейская улица, 11
ст. Кунцевская ,
6 мин
7 мин
ст. Славянский бульвар ,
11 мин
ст. Давыдково
5 этаж
Смешанная
без мебели
с отделкой
Офис, 363 м2
В бизнес центре «Wall Street»
Валовая улица, 35
ст. Добрынинская
4 мин
ст. Павелецкая
10 мин
ст. Серпуховская
6 мин
7 этаж
Смешанная
без мебели
с отделкой
Офис, 386.36 м2
В бизнес центре «Садовая Галерея»
Малая Сухаревская площадь, 12
ст. Сухаревская
1 мин
4 этаж
Смешанная
без мебели
с отделкой
Ирина Трейвас
Управляющий партнёр















