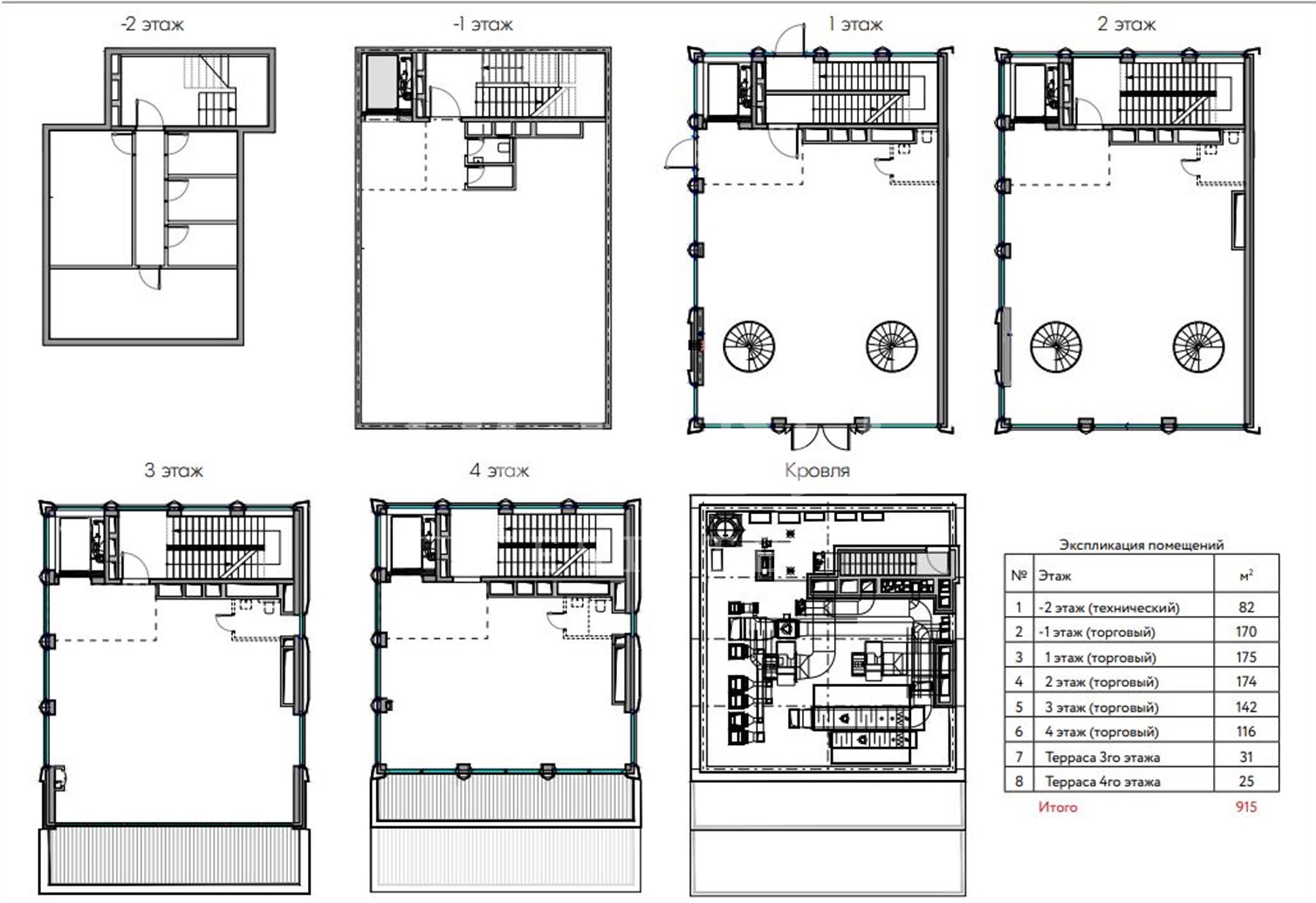
Уникальный объект. Сдача в аренду особняка на самой популярной торговой улице исторического центра Москвы. Точка притяжения для пешего трафика, офисное окружение. Здание представляет из себя 1037 кв.м. 4 назменых этажа, 2 подземных. Лифт. 400 кВт мощности. Подогрев крыльца, вентилируемый фасад. Панорамное остекление на всех этажах. Эксплуатируемая кровля.
Узнайте больше О бизнес-центре
Посмотрите информацию об инфраструктуре, истории и других объектах недвижимости.
Подробнееоставьте заявку
Похожие предложения
В бизнес центре «НОВО»
В бизнес центре «Симонов Плаза»
В бизнес центре «Dubinin Sky»
Ирина Трейвас
Управляющий партнёр









