- Главная
- Коммерческая элитная недвижимость
- Снять коммерческую недвижимость
- Особняк В административном здании «Вятская улица, 27с20»
ID 101982
Особняк В административном здании «Вятская улица, 27с20»
Вятская улица, 27с20
Описание
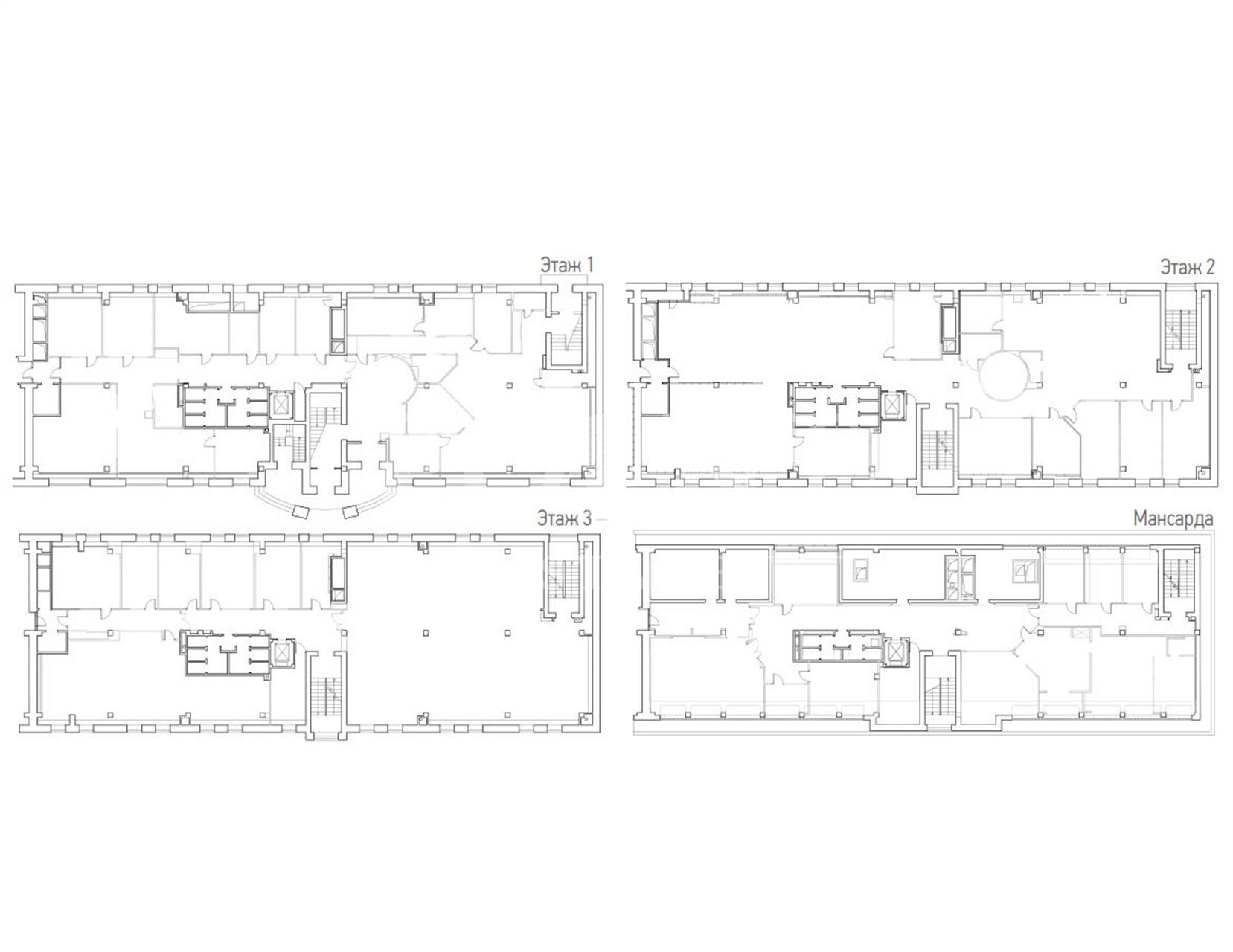
Предлагается в аренду целиком строение 20. Арендуемая площадь здания: 2 468 м2, на территории Делового Квартала Фактория. Смешанная планировка, соразмерные этажи. Дизайнерский ремонт в стиле лофт , есть VIP-зона, зона руководства. Контроль доступа остается на Арендаторе. Большой наземный и подземный паркинги. Очень развитая инфраструктура объекта- магазины, рестораны, столовая, фитнес. Один из крупнейших функционирующих бизнес-кварталов расположенный в деловом районе Северного административного округа Москвы. 17 строений разной этажности исторической и современной застройки, расположенные на обособленной территории с двумя небольшими скверами. Офисные помещения класса В+ Общая площадь 59 000 м2. Современные инженерные системы. Подогрев территории в зимний период. Наземная и подземная парковка на 537 м/м Инфраструктура на территории: фитнес-клуб со скалодромом, корпоративная столовая, кафе, ресторан, винный бар-ресторан, барбершоп, студия красоты, бутик цветов и подарков, часовая мастерская, street food restaurants.
оставьте заявку
Скачать презентацию в pdf
Похожие предложения
Колпачный переулок, 9А
ст. Китай-город
5 мин
ст. Лубянка
5 мин
новое предложение
5 этаж
Open Space
без мебели
под чистовую отделку
офис с террасой
Особняк
В административном здании «Фактория»
Вятская улица, 27с19
ст. Савеловская
11 мин
ст. Дмитровская
15 мин
Смешанная
без мебели
с отделкой
Офис, 1816.9 м2
В бизнес центре «Ситидел»
Земляной Вал улица, 9
ст. Курская
5 мин
ст. Чкаловская
9 мин
новое предложение
7 этаж
Смешанная
без мебели
с отделкой
Лобачевского улица, 27
ст. Мичуринский проспект ,
11 мин
13 мин
ст. Проспект Вернадского ,
7 мин
ст. Озерная
Смешанная
частично с мебелью
с отделкой
офис с террасой
Ирина Трейвас
Управляющий партнёр













