- Главная
- Коммерческая элитная недвижимость
- Снять коммерческую недвижимость
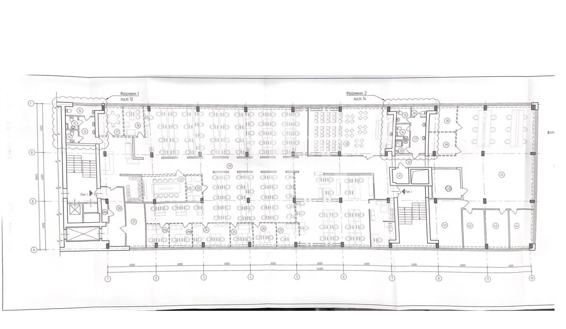
- Офис, 1000 м2 В бизнес центре «Стрелецкая Слобода»
ID 102334
Офис, 1000 м2 В бизнес центре «Стрелецкая Слобода»
Большая Новодмитровская улица, 23с1
Описание
Предлагается в аренду офисное помещение с отделкой за выездом арендатора. Планировочное решение: зона рецепции, большая рабочая зона для сотрудников, кабинеты, переговорные комнаты, 2 раздельных зоны сан.узлов, кухня, кроссовая и подсобные помещения. Приточно*вытяжная вентиляция, кондиционирование, открывающиеся окна. Срок въезда 01.01.2024 Бизнес-центр расположен в Бутырском районе Северо-восточного административного округа города Москвы. Преимуществом месторасположения объекта является его близость к метро "Дмитровская" и "Савёловская". По Бутырской улицы удобен выезд на ТТК и Савёловский вокзал. В нескольких километрах проходит Ленинградский проспект, проспект Мира, улица Сущевский Вал и Садовое кольцо.
оставьте заявку
Скачать презентацию в pdf
Похожие предложения
Офис, 541 м2
В административном здании «Рассвет»
Столярный переулок, 3с13
ст. Улица 1905 года
6 мин
ст. Краснопресненская
8 мин
новое предложение
3 этаж
Смешанная
без мебели
с отделкой
Офис, 538.04 м2
В бизнес центре «Красный Пролетарий»
Краснопролетарская улица, 16с1
ст. Новослободская
9 мин
ст. Достоевская
10 мин
новое предложение
3 этаж
Смешанная
частично с мебелью
с отделкой
Офис, 615 м2
В бизнес центре «Ferro Plaza»
Кржижановского улица, 14к3
ст. Профсоюзная
6 мин
ст. Новые Черемушки
15 мин
5 этаж
Смешанная
без мебели
с отделкой
Офис, 295 м2
В бизнес центре «Wall Street»
Валовая улица, 35
ст. Добрынинская
4 мин
ст. Павелецкая
10 мин
ст. Серпуховская
6 мин
8 этаж
Смешанная
без мебели
с отделкой
Ирина Трейвас
Управляющий партнёр












