- Главная
- Коммерческая элитная недвижимость
- Снять коммерческую недвижимость
- ПСН, 609.2 м2 В административном здании «Большая Бронная улица, 11»
ID 102711
ПСН, 609.2 м2 В административном здании «Большая Бронная улица, 11»
Большая Бронная улица, 11
Описание
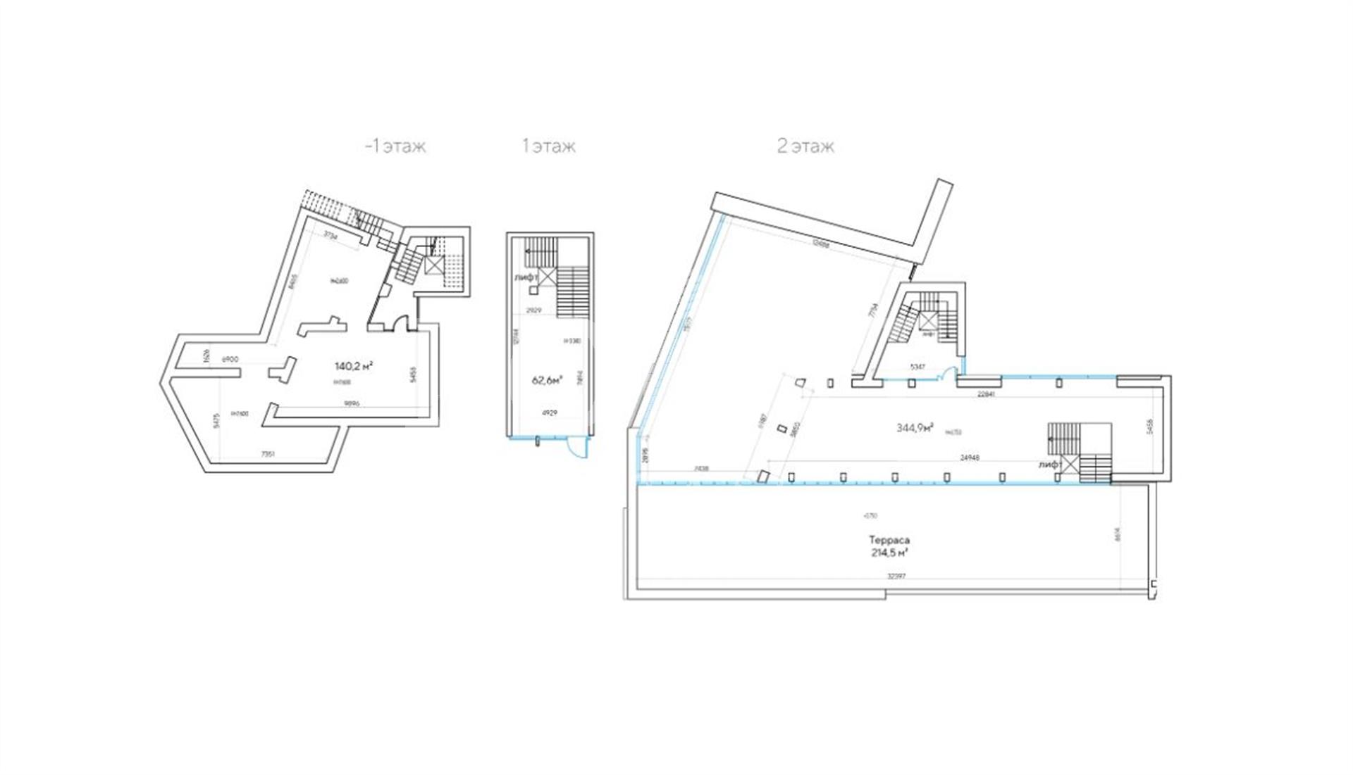
Уникальное помещение под ресторан на Патриарших прудах! Здание после капитальной реконструкции, окончание работ - июль 2024 года! Помещение площадью 609 кв.м., состоит из цокольного этажа - 140 кв.м., 1-го этажа - 62,6 кв.м., 2-го этажа - 344,9 кв.м., а также открытая приватная терраса площадью 214,5 кв.м. Организован свой независимый вход в блок со стороны ул. Большая Бронная. Высокие потолки и витринное остекление по фасаду! Помещение передается в состоянии "под отделку", срок арендных каникул - обсуждается индивидуально! На фасаде здания возможна организация вывески! Проведено центральное отопление, мокрая точка, горячая, холодная вода от ИТП. Возможно получить алкогольную лицензию, помещение идеально подходит под организацию ресторана! Большая Бронная 11 - уникальный объект в районе Патриарших прудов, аналогов которому - нет! Объект станет новой точкой притяжения в данной локации! Интенсивный пешеходный и автомобильный трафик за счет пересечения с ул. Малая Бронная! В окружении располагаются большая застройка элитных клубных и жилых домов, что подчеркивает статность и платежеспособность аудитории данного района.
оставьте заявку
Скачать презентацию в pdf
Похожие предложения
Офис, 2234 м2
В бизнес центре «Квадрат»
Верейская улица, 11
ст. Кунцевская ,
6 мин
7 мин
ст. Славянский бульвар ,
11 мин
ст. Давыдково
5 этаж
Смешанная
без мебели
с отделкой
Офис, 1632 м2
В бизнес центре «Квадрат»
Верейская улица, 11
ст. Кунцевская ,
6 мин
7 мин
ст. Славянский бульвар ,
11 мин
ст. Давыдково
4 этаж
Смешанная
без мебели
с отделкой
Офис, 1194.3 м2
В бизнес центре «Трехгорная мануфактура»
Рочдельская улица, 15с11-11А
ст. Улица 1905 года
15 мин
3 этаж
Смешанная
без мебели
с отделкой
loft
Рочдельская улица, 15с44
ст. Краснопресненская
15 мин
ст. Улица 1905 года
15 мин
новое предложение
Open Space
без мебели
с отделкой
Ирина Трейвас
Управляющий партнёр










