- Главная
- Коммерческая элитная недвижимость
- Снять коммерческую недвижимость
- Офис, 969 м2 В особняке «Академика Туполева набережная, 15к17»
ID 104442
Офис, 969 м2 В особняке «Академика Туполева набережная, 15к17»
ст. Бауманская
Академика Туполева набережная, 15к17
Описание
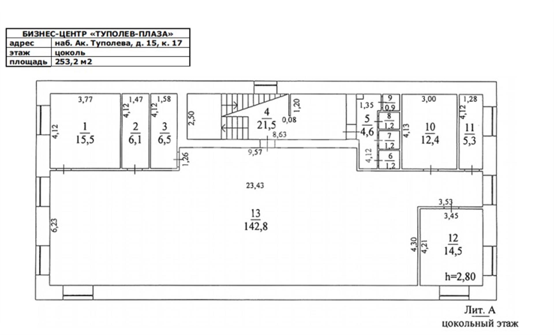
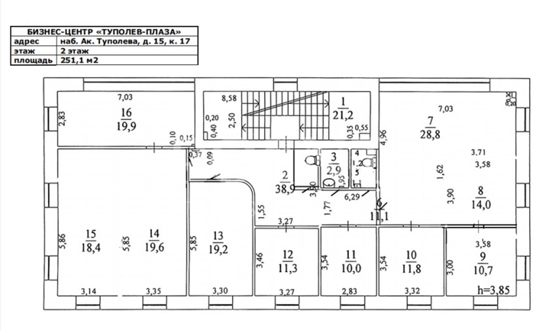
Предлагается в аренду представительский особняк на территории Бизнес-центра "Туполев Плаза". Здание построено в 2004 году. 3-х этажный особняк, смешанной планировки, состоит из просторной зоны ресепшн/отдыха, открытых пространств, изолированных кабинетов и переговорных комнат, серверной, подсобных помещений. Комнаты для приема пищи со встроенными мини кухнями и санузлы на каждом этаже. Площадь каждого этажа 226 - 253 кв.м., высокие потолки - 4,5 метра. На 3-м этаже VIP зона руководства с соответствующей отделкой. Выполнен дизайнерский ремонт из высококачественных материалов. Провайдер компания «ВиЛэнд». Особняк прекрасно подойдет под представительство компании, клиентский офис и т.д. Круглосуточная охрана, ведется внутреннее и внешнее (по всему периметру) видеонаблюдение. Парковка на внутренней огороженной территории. Пешая доступность от метро "Бауманская" - 12 минут. Для автовладельцев удобные подъездные пути с Садового кольца, ТТК и набережной Академика Туполева.
Академика Туполева набережная, 15к17
Узнайте больше О бизнес-центре
Посмотрите информацию об инфраструктуре, истории и других объектах недвижимости.
ПодробнееРасположение
Академика Туполева набережная, 15к17
оставьте заявку
Скачать презентацию в pdf
Похожие предложения
Гранатный переулок, 24/4с2
ст. Баррикадная ,
10 мин
9 мин
ст. Краснопресненская
12 мин
ст. Маяковская
новое предложение
1 этаж
Смешанная
с отделкой
ПСН, 342.5 м2
В административном здании «Мясницкая улица, 8/2»
Мясницкая улица, 8/2
ст. Лубянка
5 мин
1 этаж
Open Space
без мебели
под чистовую отделку
Офис, 435 м2
В административном здании «Фактория»
Вятская улица, 27с15
ст. Савеловская
5 мин
ст. Дмитровская
10 мин
3 этаж
Смешанная
с мебелью
с отделкой
1 этаж
Кабинетная
без мебели
с отделкой
Ирина Трейвас
Управляющий партнёр






















