- Главная
- Коммерческая элитная недвижимость
- Снять коммерческую недвижимость
- Офис, 1003.4 м2 В бизнес центре «Горизонт»
Описание
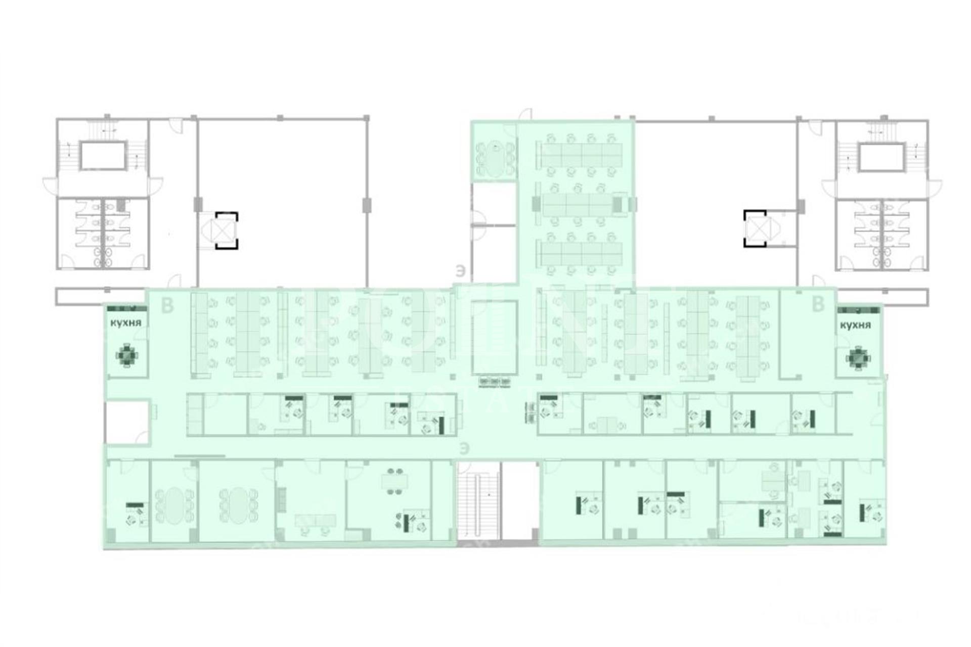
В аренду предлагается автономный блок площадью 1003 кв.м. В помещении сделан офисный ремонт, помещение сдается с мебелью. Смешанная планировка: зона ресепшн, open-space, кабинеты и переговорные комнаты, серверная, мини-кухня и санузлы в блоке. Офис предлагается с мебелью – столы с выполненной разводкой слаботочки. Эффективная рассадка от 130 рабочих мест. Высота потолков - 3,2 метров. Все инженерные системы смонтированы (в т.ч. слаботочные), разведены по рабочим местам, центральная система вентиляции и кондиционирования (чиллер-фанкойл). На охраняемой территории располагается наземный открытый на 150 машиномест и наземный крытый на 120 машиномест.На блок предоставляются 4 машино-места из расчета парковочного коэффициента 1:100 кв.м., арендная ставка - 15000 руб/мес. Инфраструктура объекта: столовая, кафе, банкоматы «Альфа-банк», «РОСБАНК», в непосредственной близости от здания фитнес-клуб, вся инфраструктура МФК «Савеловский Сити», общественного городского пространства «Хлебозавод», дизайн-квартала «Флакон». Рядом ключевые магистрали района - Дмитровское шоссе, Бутырская улица, Шереметьевская улица и ТТК. Шаговая доступность до станции метро "Дмитровская" - 10 минут.
оставьте заявку
Скачать презентацию в pdf
Похожие предложения
Офис, 541 м2
В административном здании «Рассвет»
Столярный переулок, 3с13
ст. Улица 1905 года
6 мин
ст. Краснопресненская
8 мин
новое предложение
3 этаж
Смешанная
без мебели
с отделкой
Офис, 698 м2
В бизнес центре «Квадрат»
Верейская улица, 11
ст. Кунцевская ,
6 мин
7 мин
ст. Славянский бульвар ,
11 мин
ст. Давыдково
5 этаж
Смешанная
без мебели
с отделкой
Офис, 615 м2
В бизнес центре «Ferro Plaza»
Кржижановского улица, 14к3
ст. Профсоюзная
6 мин
ст. Новые Черемушки
15 мин
5 этаж
Смешанная
без мебели
с отделкой
Офис, 295 м2
В бизнес центре «Wall Street»
Валовая улица, 35
ст. Добрынинская
4 мин
ст. Павелецкая
10 мин
ст. Серпуховская
6 мин
8 этаж
Смешанная
без мебели
с отделкой
Ирина Трейвас
Управляющий партнёр



























