- Главная
- Коммерческая элитная недвижимость
- Снять коммерческую недвижимость
- Офис, 2451 м2 В бизнес центре «Андропова проспект, 11»
ID 108917
Офис, 2451 м2 В бизнес центре «Андропова проспект, 11»
Андропова проспект, 11
Описание
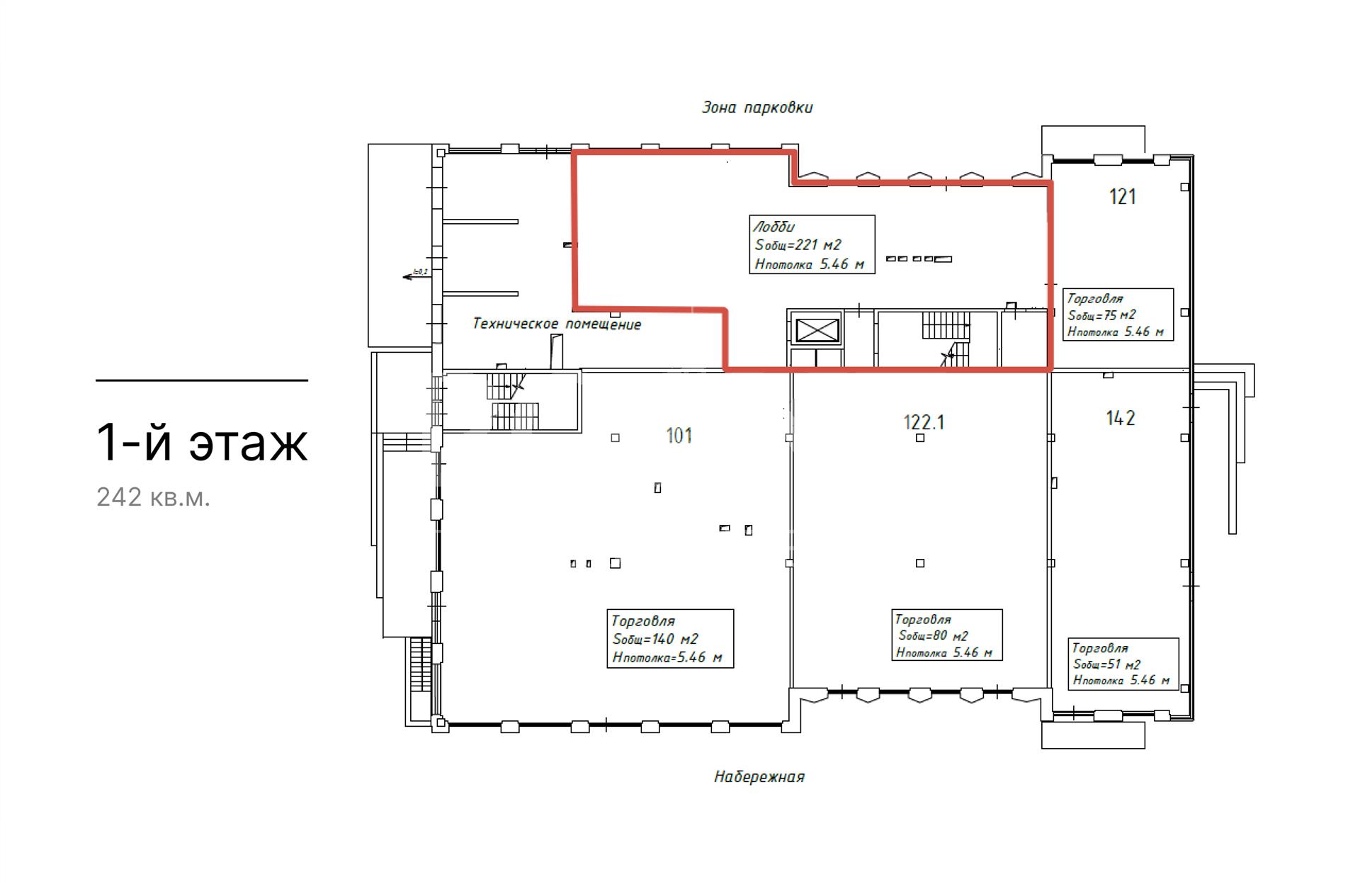
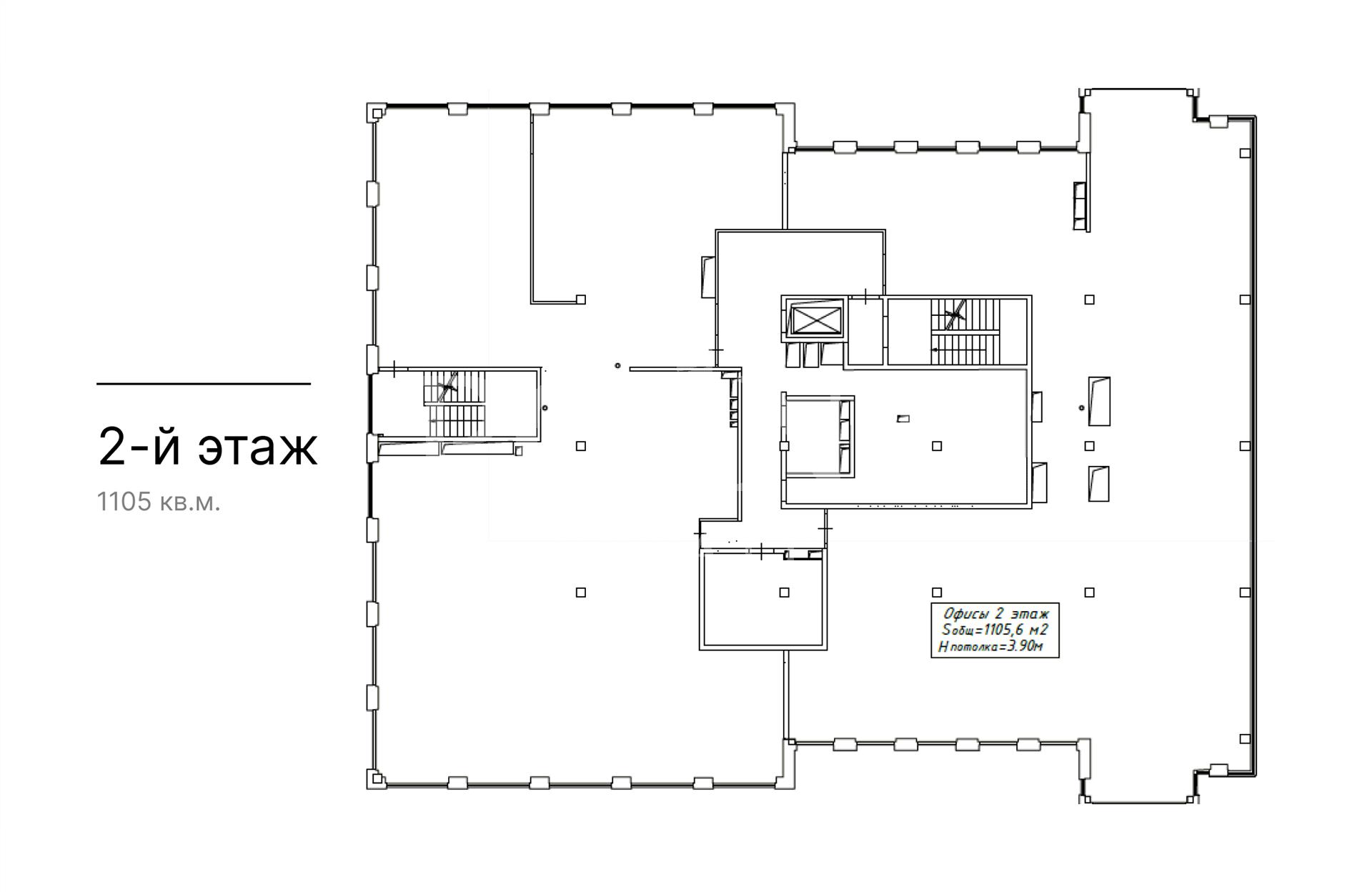
Сдается в аренду офисный блок в 1-м корпусе Делового квартала "Юпорт" на 3-х этажах общей площадью 2451 кв.м. (1 этаж: 241 кв.м., высота потолка 5,4 м.; 2 этаж: 1105 кв.м., высота потолка 3,9 м.; 3 этаж: 1105 кв.м., высота потолка 4,5 м.). Здание расположено на 1-й линии проспекта Андропова по вечерней стороне из центра Москвы. Панорамное остекление, стильные фасады. Лифт (гп 1000 кг, габариты 2100*1100 см). Санузел на этаже. Здание имеет в окружении развитую инфраструктуру: Южный и Северный ландшафтные парки с летним кинотеатром и курортным комплексом с бассейнами, собственные муниципальные детский сад и школа, регулируемый наземный пешеходный переход к парку Острова мечты, паркинг вдоль всего Делового квартала, парковки для велосипедов и самокатов, три автобусные остановки, места для туристических автобусов и такси, зарядные станции для электромобилей, в 2026-27 гг. открытие станции метро «Остров мечты» на территории ландшафтного парка (3 минуты пешком).
оставьте заявку
Скачать презентацию в pdf
Похожие предложения
Офис, 831.5 м2
В бизнес центре «Ситидел»
Земляной Вал улица, 9
ст. Курская
5 мин
ст. Чкаловская
9 мин
новое предложение
10 этаж
Кабинетная
без мебели
с отделкой
Офис, 1632 м2
В бизнес центре «Квадрат»
Верейская улица, 11
ст. Кунцевская ,
6 мин
7 мин
ст. Славянский бульвар ,
11 мин
ст. Давыдково
4 этаж
Смешанная
без мебели
с отделкой
ПСН, 506.13 м2
В жилом доме «Усачёва улица, 15»
Усачёва улица, 15
ст. Фрунзенская
7 мин
2 этаж
Open Space
без мебели
без отделки
офис с террасой
Ольховская улица, 45с3
ст. Красносельская
9 мин
ст. Бауманская
10 мин
ст. Комсомольская
15 мин
Смешанная
без мебели
с отделкой
loft
Ирина Трейвас
Управляющий партнёр







