- Главная
- Коммерческая элитная недвижимость
- Снять коммерческую недвижимость
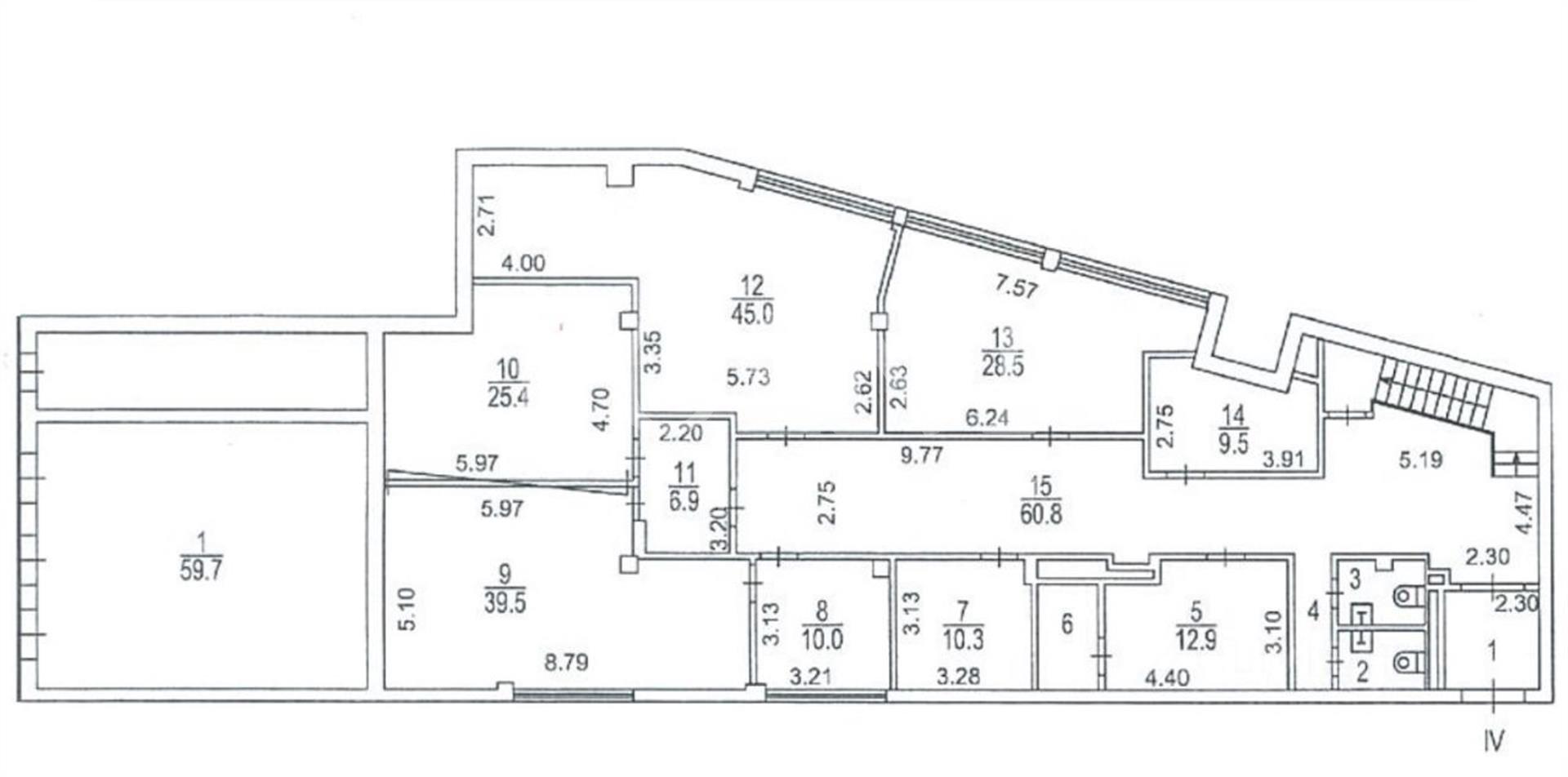
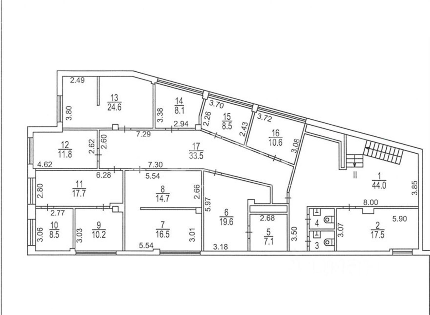
- Офис, 527 м2 В бизнес центре «Orlikov Plaza»
Описание
В аренду предлагается двухэтажный офис свободного назначения в пристройке к основному корпусу. Имеется отдельный вход с улицы. Каждый этаж занимает примерно 260 кв.м. В блоке имеются 4 с/у (по два на этаже) и выделенная зона кухни с мокрой точкой. В помещениях выполнен качественный ремонт, установлены системы пожарной сигнализации и кондиционирования. Высота потолков – 3 метра. При необходимости возможно предоставление юридического адреса. Имеется многоуровневая парковка, ставка аренды в месяц 20 000 руб. Бизнес-центр располагается в центральном административном округе г. Москвы на первой линии домов Орликова переулка. Хорошая транспортная доступность в непосредственной близости от Садового кольца и ТТК.
оставьте заявку
Скачать презентацию в pdf
Похожие предложения
Офис, 538.04 м2
В бизнес центре «Красный Пролетарий»
Краснопролетарская улица, 16с1
ст. Новослободская
9 мин
ст. Достоевская
10 мин
новое предложение
3 этаж
Смешанная
частично с мебелью
с отделкой
Офис, 615 м2
В бизнес центре «Ferro Plaza»
Кржижановского улица, 14к3
ст. Профсоюзная
6 мин
ст. Новые Черемушки
15 мин
5 этаж
Смешанная
без мебели
с отделкой
Офис, 1000 м2
В административном здании «Гиляровского 65с1»
Гиляровского улица, 65с1
ст. Рижская
7 мин
ст. Проспект мира
12 мин
1 этаж
Кабинетная
без мебели
с отделкой
loft
Офис, 721 м2
В бизнес центре «Проектируемый 4062-й проезд, 6с25»
Проектируемый 4062-й проезд, 6с25
ст. Технопарк
3 мин
3 этаж
Смешанная
без мебели
с отделкой
Ирина Трейвас
Управляющий партнёр


















