- Главная
- Коммерческая элитная недвижимость
- Снять коммерческую недвижимость
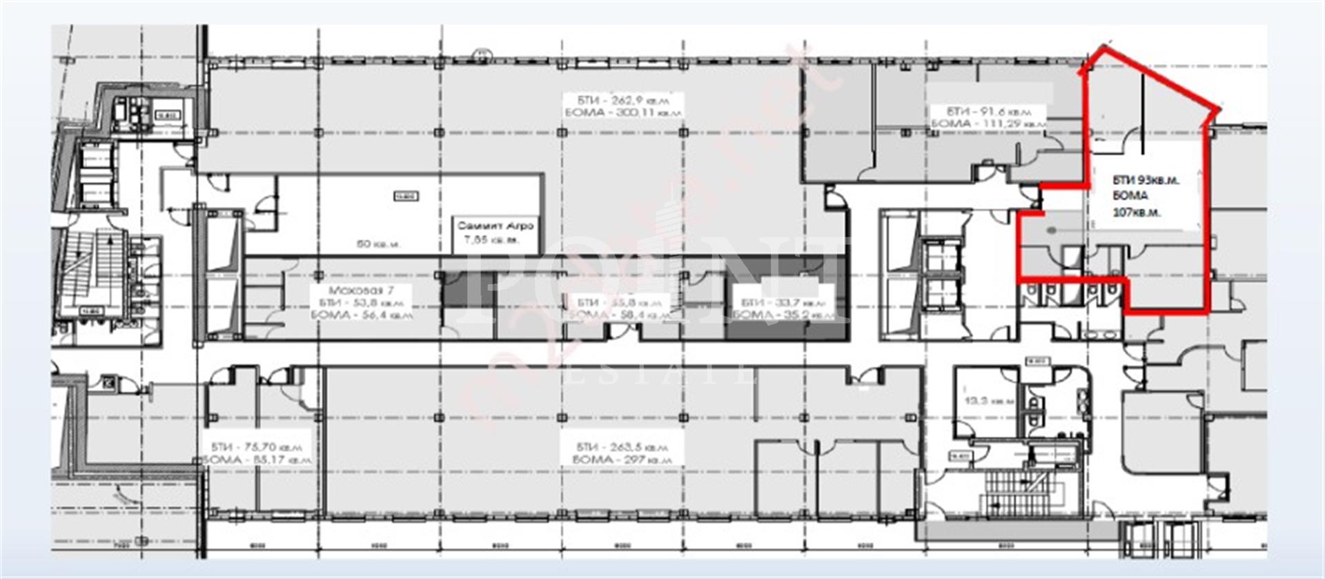
- Офис, 107 м2 В бизнес центре «Деловой Дом "Моховая"»
ID 112421
Офис, 107 м2 В бизнес центре «Деловой Дом "Моховая"»
ст. Охотный ряд
Воздвиженка улица, 4/7с2
Описание
Офисное помещение расположенное на 5 этаже, общей площадью 107 кв.м., полезная площадь 93 кв.м. Кабинетная планировка, санузел находится на этаже, в блоке с/у отсутствует. Высота потолков - 3 метра. Светлое помещение, качественная офисная отделка. Офис готов к въезду. Деловой Дом «Моховая» находится в 5 мин. ходьбы от Красной Площади и Кремля. Рядом пролегает улица Воздвиженка, Большая Никитская и Моховая улицы. Станция метро Библиотека имени Ленина расположена в 1 минуте ходьбы от Делового Дома, станция Боровицкая в 4 минутах. Здание Делового Дома «Моховая» оборудовано современными инженерными системами и является объектом класса А.
Деловой Дом "Моховая"
Узнайте больше О бизнес-центре
Посмотрите информацию об инфраструктуре, истории и других объектах недвижимости.
ПодробнееРасположение
Воздвиженка улица, 4/7с2
оставьте заявку
Скачать презентацию в pdf
Похожие предложения
Офис, 288.42 м2
В бизнес центре «Красный Пролетарий»
Краснопролетарская улица, 16с1
ст. Новослободская
9 мин
ст. Достоевская
10 мин
2 этаж
Кабинетная
без мебели
с отделкой
ПСН, 245.85 м2
В бизнес центре «Красный Пролетарий»
Краснопролетарская улица, 16с2
ст. Менделеевская
10 мин
1 этаж
Смешанная
без мебели
с отделкой
Офис, 327 м2
В бизнес центре «Линкор»
Авиаконструктора Микояна улица, 12
ст. ЦСКА ,
7 мин
8 мин
ст. Аэропорт
4 этаж
Кабинетная
без мебели
с отделкой
ПСН, 269.6 м2
В бизнес центре «GEOLOG 2»
Обручева улица, вл.23
ст. Калужская
7 мин
1 этаж
Open Space
без мебели
под чистовую отделку
Ирина Трейвас
Управляющий партнёр









