- Главная
- Коммерческая элитная недвижимость
- Снять коммерческую недвижимость
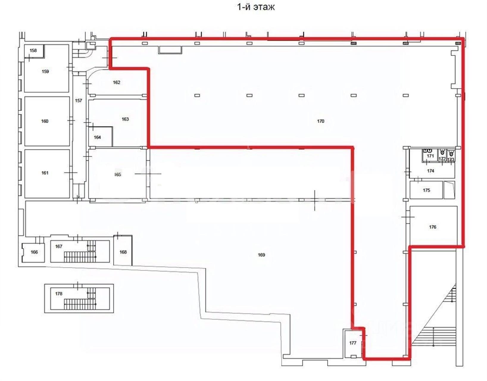
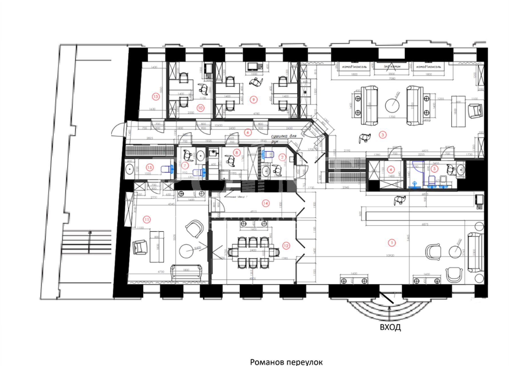
- Офис, 300 м2 В бизнес центре «Романов Двор»
Описание
Предлагается в аренду помещение на 1-м этаже с отдельной входной группой с ул. Романов переулок. Площадь блока 300 кв.м., в настоящий момент помещение в состоянии без отделки (в бетоне). Подходящее назначение: отделение банка или офис продаж. Высокие потолки, возможность сделать любое зонирование. Начало аренды - по согласованию. БЦ "Романов Двор" - это три здания, дополненные богатой инфраструктурой и живописными внутренними дворами. Уникальный эклектичный стиль позволил зданиям Romanov Dvor бережно интегрироваться в окружающую историческую застройку. Профессиональная управляющая компания круглосуточно контролирует надежную работу инженерных систем и оборудования.За порядок отвечает современная служба безопасности, контролирующая внутреннее и прилегающее пространство при помощи эффективной системы видеонаблюдения. Эксплуатация здания осуществляется с применением алгоритмов и возможностей Big Data.
оставьте заявку
Скачать презентацию в pdf
Похожие предложения
Офис, 538.04 м2
В бизнес центре «Красный Пролетарий»
Краснопролетарская улица, 16с1
ст. Новослободская
9 мин
ст. Достоевская
10 мин
новое предложение
3 этаж
Смешанная
частично с мебелью
с отделкой
Офис, 615 м2
В бизнес центре «Ferro Plaza»
Кржижановского улица, 14к3
ст. Профсоюзная
6 мин
ст. Новые Черемушки
15 мин
5 этаж
Смешанная
без мебели
с отделкой
Офис, 1000 м2
В административном здании «Гиляровского 65с1»
Гиляровского улица, 65с1
ст. Рижская
7 мин
ст. Проспект мира
12 мин
1 этаж
Кабинетная
без мебели
с отделкой
loft
Офис, 721 м2
В бизнес центре «Проектируемый 4062-й проезд, 6с25»
Проектируемый 4062-й проезд, 6с25
ст. Технопарк
3 мин
3 этаж
Смешанная
без мебели
с отделкой
Ирина Трейвас
Управляющий партнёр




