- Главная
- Коммерческая элитная недвижимость
- Снять коммерческую недвижимость
- Офис, 435.6 м2 В бизнес центре «Щипок улица, 5/7с2»
ID 114645
Офис, 435.6 м2 В бизнес центре «Щипок улица, 5/7с2»
Щипок улица, 5/7с2
Описание
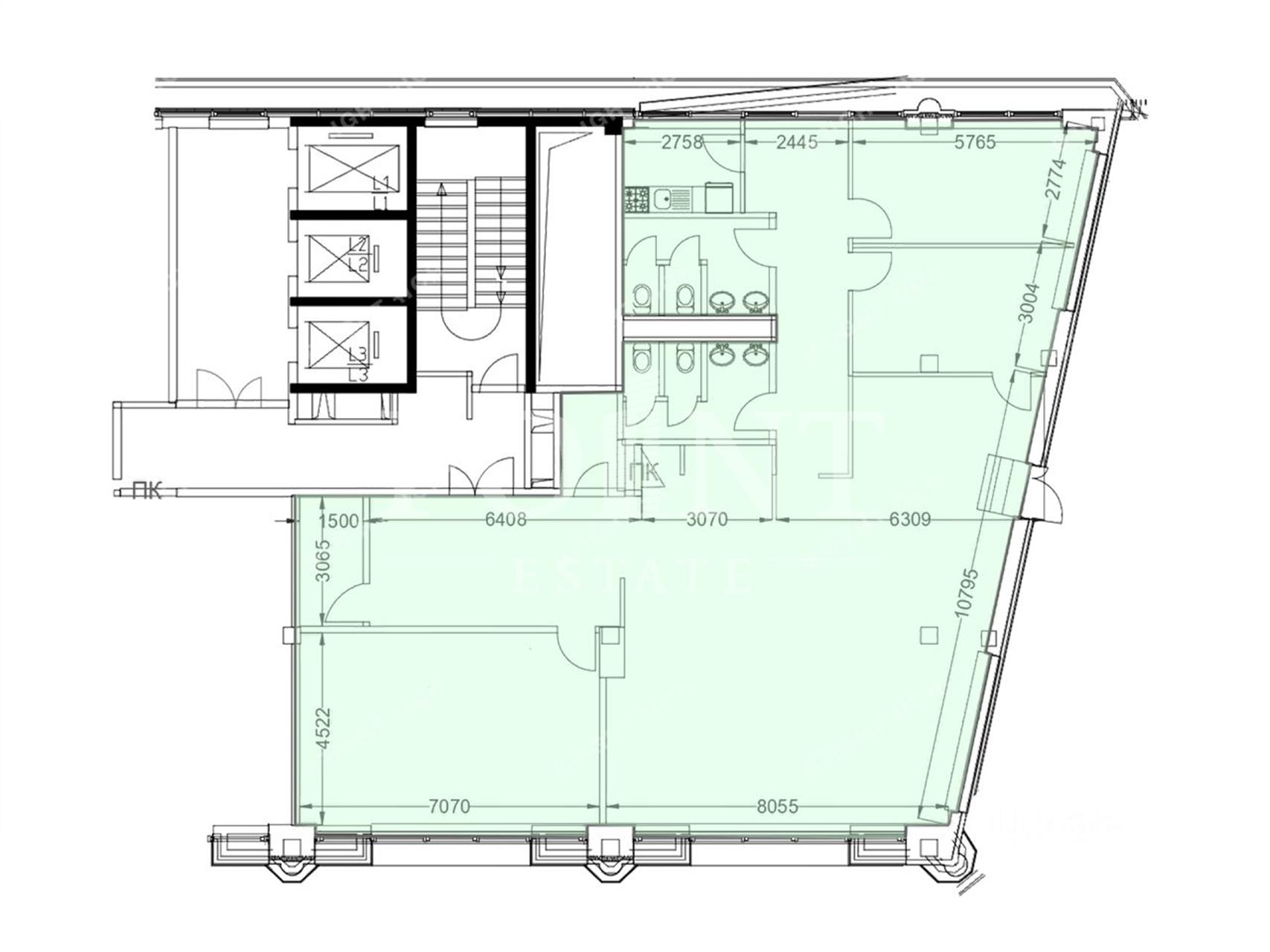
Предлагается в аренду офисное помещение площадью 435 кв.м. на 5-м этаже современного бизнес-центра "Щипок" класса B+. Внутри блока выполнена качественная отделка, высота потолков 3,3 метра. Смешанная планировка офиса: зона ресепшн, кабинеты, переговорные комнаты, оpen-space с/у и кухонная зона. Готовая серверная с двумя кондиционерами. Есть выход на террасу/кровлю - возможно совместно арендовать (500 кв.м.). Бизнес-центр "Щипок 5" находится в нескольких минут от метро "Серпуховская" (не более 4 минут пешком), поэтому в непосредственной близости от него имеется вся необходимая инфраструктура (банки, магазины, кафе и т.д.). Особняк привлекателен своей транспортной доступностью, подъехать к нему можно по таким магистралям, как Садовое Кольцо. Бизнес-центр имеет техническую возможность установки климатического оборудования в офисных помещениях. Предусмотрена подземная охраняемая автостоянка.
оставьте заявку
Скачать презентацию в pdf
Похожие предложения
ПСН, 217 м2
В административном здании «Столешников переулок, 9с3»
Столешников переулок, 9с3
ст. Охотный ряд
10 мин
ст. Тверская
11 мин
1 этаж
Open Space
без мебели
с отделкой
Офис, 312 м2
В бизнес центре «Квадрат»
Верейская улица, 11
ст. Кунцевская ,
6 мин
7 мин
ст. Славянский бульвар ,
11 мин
ст. Давыдково
2 этаж
Open Space
без мебели
с отделкой
Офис, 751 м2
В административном здании «Гиляровского 65с1»
Гиляровского улица, 65с1
ст. Рижская
7 мин
ст. Проспект мира
12 мин
5 этаж
Кабинетная
без мебели
с отделкой
loft
ПСН, 265.5 м2
В бизнес центре «Рочдельская улица, 15с35»
Рочдельская улица, 15с35
ст. Краснопресненская
12 мин
1 этаж
Open Space
частично с мебелью
с отделкой
Ирина Трейвас
Управляющий партнёр










