- Главная
- Коммерческая элитная недвижимость
- Снять коммерческую недвижимость
- Офис, 128.2 м2 В особняке «Колпачный переулок, 9с1»
ID 93176
Офис, 128.2 м2 В особняке «Колпачный переулок, 9с1»
ст. Китай-город
Колпачный переулок, 9с1
Описание
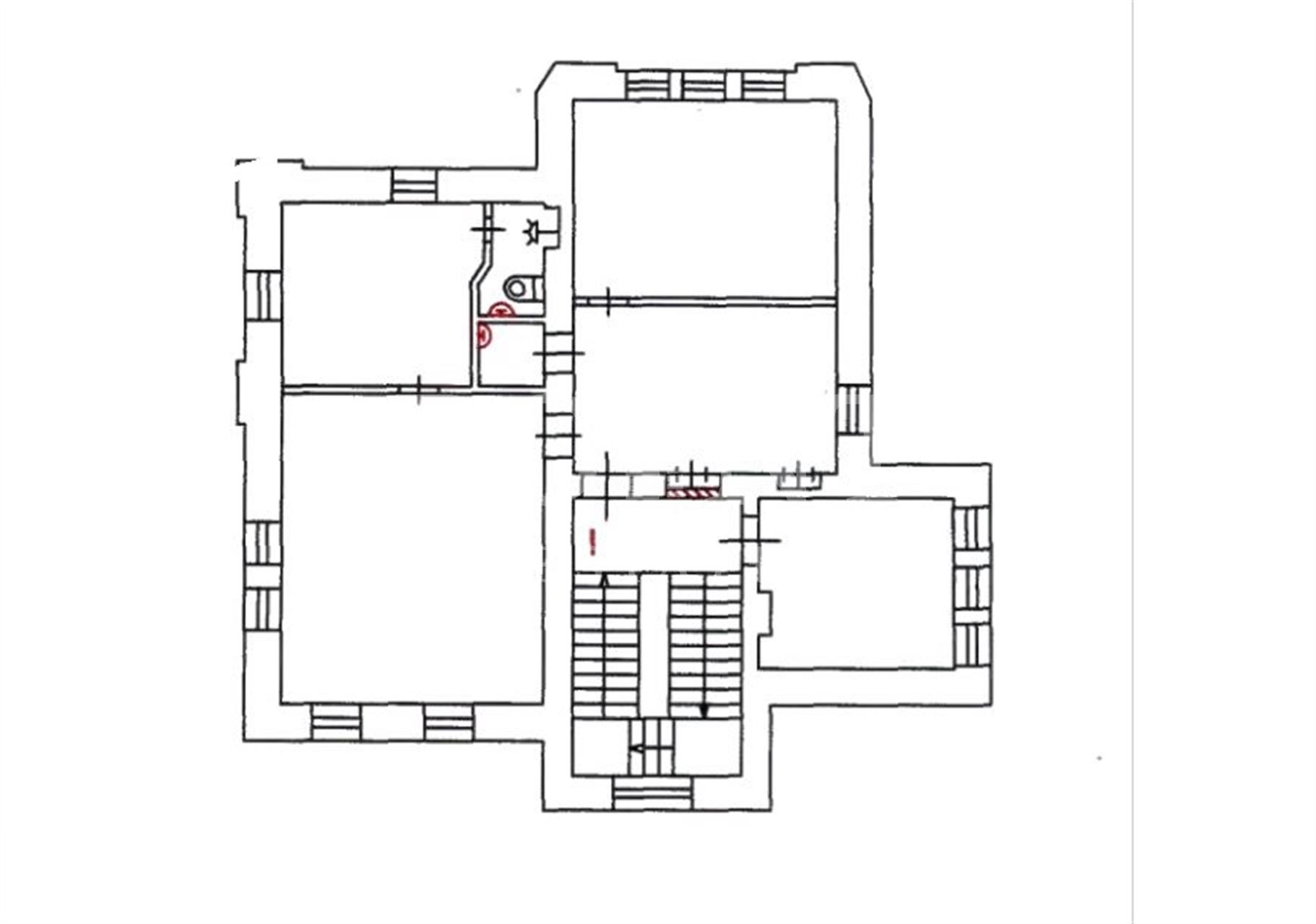
В аренду предлагается целиком 2-й этаж в изысканном камерном особняке в пешей доступности от метро "Китай-город". Площадь 2-го этажа 128,2 кв.м, кабинетная планировка. В блоке есть собственный санузел, в каждом кабинете есть окна. Качественный ремонт, высокие потолки. На блок предоставляюися 2 м/м на приватной территории, ставка аренды 40 000 руб/мес с НДС за каждое. Особняк возведен в 1912 году и первым владельцем архитектурного сооружения был Григорий Петрович Юргенсон — сын известного музыкального издателя П. И. Юргенсона. Городская усадьба Г. П. Юргенсона является памятником архитектуры. Особняк расположен на охраняемой территории, в 5-ти минутах пешком от м. «Китай-город». Особняк расположен в центральном округе города Москвы между Покровкой и Хохловским переулком.В шаговой доступности находятся центральные магазины, отели, парки и торговые центры.
Колпачный переулок, 9с1
Узнайте больше О бизнес-центре
Посмотрите информацию об инфраструктуре, истории и других объектах недвижимости.
ПодробнееРасположение
Колпачный переулок, 9с1
оставьте заявку
Скачать презентацию в pdf
Похожие предложения
Офис, 125 м2
В торговом центре «Интерьер Центр "ВОДНЫЙ"»
Ленинградское шоссе, 58с7
ст. Водный стадион
7 мин
3 этаж
Смешанная
без мебели
с отделкой
ПСН, 220 м2
В жилом доме «Брюсов переулок, 2/14с4»
Брюсов переулок, 2/14с4
ст. Театральная ,
10 мин
13 мин
ст. Охотный ряд ,
5 мин
ст. Арбатская ,
4 мин
ст. Тверская
1 этаж
Кабинетная
частично с мебелью
с отделкой
Офис, 183.9 м2
В бизнес центре «Baker Plaza»
Бутырский Вал улица, 68/70с1
ст. Савеловская
15 мин
новое предложение
1 этаж
Кабинетная
без мебели
с отделкой
ПСН, 98 м2
В жилом доме «ЖК Зорге-9»
Зорге улица, 9
ст. Хорошёво
6 мин
1 этаж
Open Space
без мебели
с отделкой
Ирина Трейвас
Управляющий партнёр











