- Главная
- Коммерческая элитная недвижимость
- Снять коммерческую недвижимость
- Офис, 1131 м2 В МФК «Технопарк Отрадное»
ID 95284
Офис, 1131 м2 В МФК «Технопарк Отрадное»
ст. Отрадное
Отрадная улица, 2Б
Описание
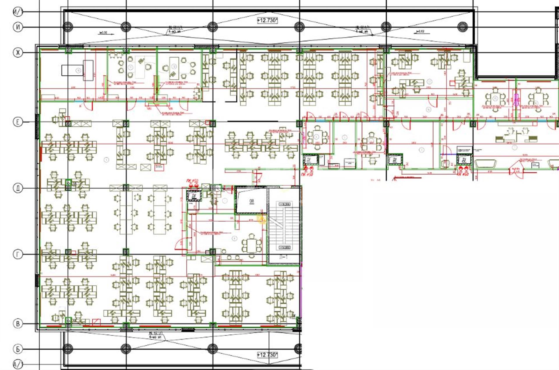
Предлагается в аренду помещение 1138,5 м2 на 125 рабочих места. Подойдет под офис или лабораторию. Выполнена стандартная офисная отделка. Помещение состоит из кухни, серверной, гардеробной, 8 переговорных/кабинетов. Возможна аренда с мебелью, предоставление услуг ресепшен, аренды/обслуживания переговорных комнат возможна аренда с мебелью. Находится в строении 9. Большая огороженная и охраняемая инфраструктура 3,4 га. Два въезда-выезда. Две корпоративных столовых с летней террасой, кофейни. Бесплатные общедоступные летние террасы с Wi-Fi. Бесплатная многофункциональная площадка: футбол, баскетбол, волейбол, зимой — каток, настольный теннис. Фитнес-центр. Душевые и раздевалки для велосипедистов и мотоциклистов. Курительные комнаты с отдельной системой вентиляции. Площадь этажа здания А — 2 200 кв. м. Современные системы вентиляции и кондиционирования. Инженерные системы здания полностью соответствуют классу «А+». Система «зимнего холода» — возможность пользоваться охлаждением зимой. Все лифты опускаются на подземный паркинг. Профессиональная управляющая команда. Наличие грузового лифта грузоподъемностью 2 000 кг. Отдельно оплачивается парковка от 1 м/м 10.000-17.000 руб.,к/у, интернет, уборка. На данный момент в блоке есть действующий арендатор.
Технопарк Отрадное
Узнайте больше О бизнес-центре
Посмотрите информацию об инфраструктуре, истории и других объектах недвижимости.
ПодробнееРасположение
Отрадная улица, 2Б
оставьте заявку
Скачать презентацию в pdf
Похожие предложения
Офис, 698 м2
В бизнес центре «Квадрат»
Верейская улица, 11
ст. Кунцевская ,
6 мин
7 мин
ст. Славянский бульвар ,
11 мин
ст. Давыдково
5 этаж
Смешанная
без мебели
с отделкой
Офис, 1000 м2
В бизнес центре «Ferro Plaza»
Кржижановского улица, 14к3
ст. Профсоюзная
6 мин
ст. Новые Черемушки
15 мин
3 этаж
Смешанная
без мебели
с отделкой
Офис, 363 м2
В бизнес центре «Wall Street»
Валовая улица, 35
ст. Добрынинская
4 мин
ст. Павелецкая
10 мин
ст. Серпуховская
6 мин
7 этаж
Смешанная
без мебели
с отделкой
Офис, 386.36 м2
В бизнес центре «Садовая Галерея»
Малая Сухаревская площадь, 12
ст. Сухаревская
1 мин
4 этаж
Смешанная
без мебели
с отделкой
Ирина Трейвас
Управляющий партнёр





























