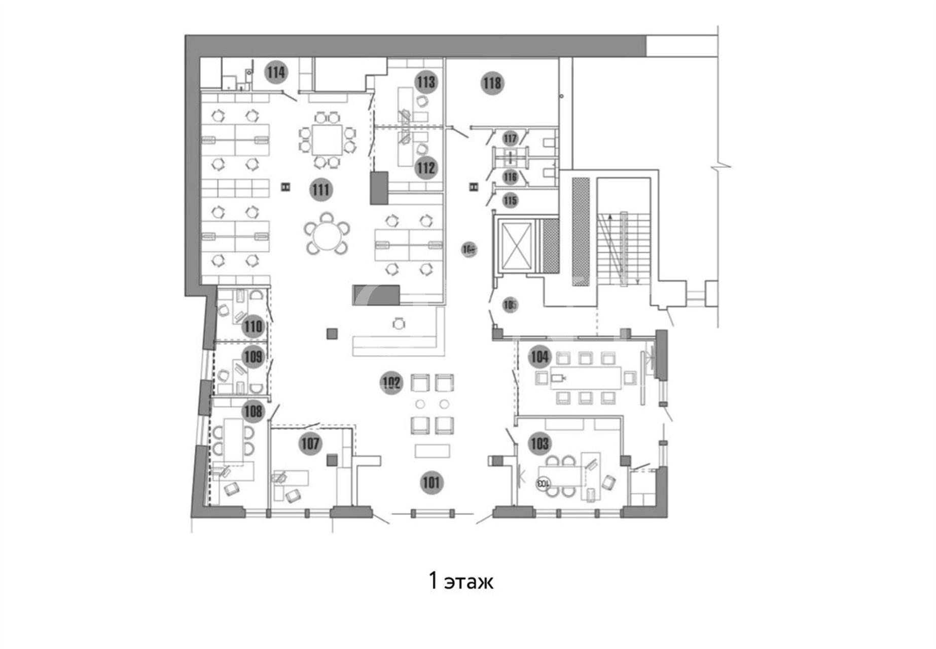
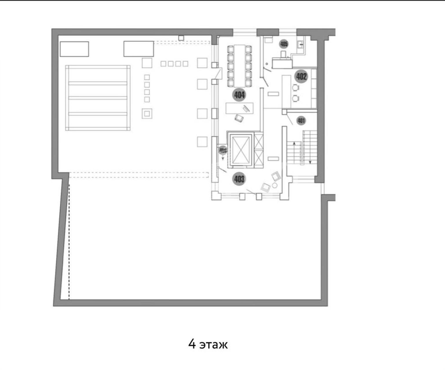
Четырехэтажный особняк с эксплуатируемой террасой на крыше в составе делового комплекса особняков "Central Street" класса А. Фасад здания выполнен из красного кирпича в классическом английском стиле. Внутри смешанная планировка, включающая в себя открытые зоны open-space, отдельные кабинеты руководителей. На каждом этаже расположены переговорные комнаты, серверные помещения и санузлы. Качественная отделка, высота потолков 3,1-3,3 метра. Для удобства перемещения установлен лифт. На террасе площадью 365 кв.м. можно организовать зону отдыха. В подземном паркинге предусмотрено 1 машиноместо, дополнительно спланировано 7 машиномест на крытой площадке в 100 метрах от здания. Особняк подходит под офис или медицинскую клинику. В окружении развитая инфраструктура, множество ресторанов, кафе и салонов красоты. Рядом находятся сад культуры и отдыха имени Баумана. Удобный выезд на ТТК занимает 2 минуты, до Садового кольца можно добраться за 15 минут. До ближайшей станции метро «Бауманская» 5 минуты ходьбы, метро «Красносельская» находится в 12-и минутах.
оставьте заявку
Похожие предложения
В бизнес центре «стр.1 Lucky»
В бизнес центре «Магистраль Плаза»
Ирина Трейвас
Управляющий партнёр















