- Главная
- Коммерческая элитная недвижимость
- Купить коммерческую недвижимость
- Офис, 911 м2 В административном здании «Шмитовский проезд, 3с3»
ID 93378
Офис, 911 м2 В административном здании «Шмитовский проезд, 3с3»
Шмитовский проезд, 3с3
Описание
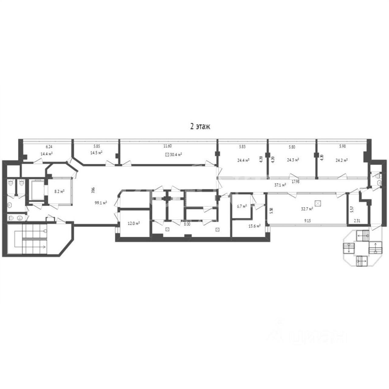
Предлагается на продажу офисное помещение 911 кв.м. в бизнес-центре "Шмитовский 3". Помещение занимает 2 и 3 этажи, внутри сделан классический офисный ремонт. Имеется отдельный вход в блок. Смешанная планировка пространства: входная группа (зона ресепшн), кабинеты для сотрудников, переговорные комнаты, конференц-зал, серверная, кабинеты руководителей, кухонная зона, санузлы, а также банковская инфраструктура. Офис предлагается с мебелью. Офис свободен от арендатора. В помещении установлены: системы пожарной безопасности - соблюдён ГОСТ Р 12.3.047-98 Система стандартов безопасности труда (ССБТ). Охранная система и сигнализация - датчики движения, датчики разбития, камеры видеонаблюдения. При входе установлены турникеты - возможно организовать пропускной режим. Проведено центральное кондиционирование и приточно-вытяжная вентиляция. На охраняемой территории имеется наземный паркинг - 4 машино-места включены в стоимость продажи. Инфраструктура: в шаговой доступности кафе, рестораны, магазины, аптеки, банкоматы, отделения банков, остановки общественного транспорта. Ближайшие станции метро - " Улица 1905 года" - пешая доступность - 7 минут.
оставьте заявку
Скачать презентацию в pdf
Похожие предложения
Большой Саввинский переулок, 12с3
ст. Спортивная
12 мин
ст. Фрунзенская
18 мин
Офис, 260 м2
В МФК «Дом Правды»
Правды улица, 24
ст. Савеловская
9 мин
новое предложение
1 этаж
Смешанная
с мебелью
с отделкой
офис с террасой
г. Химки, ул. Молодежная
ст. Планерная ,
8 мин
ст. Сходненская ,
8 мин
новое предложение
1 этаж
Смешанная
частично с мебелью
с отделкой
ПСН, 193.7 м2
В бизнес центре «стр.1 Lucky»
2-я Звенигородская улица, 12с1
ст. Улица 1905 года
5 мин
1 этаж
Open Space
без мебели
под чистовую отделку
Ирина Трейвас
Управляющий партнёр




















