- Главная
- Коммерческая элитная недвижимость
- Купить коммерческую недвижимость
- Офис, 349.5 м2 В МФК «Башня Федерация»
ID 94141
Офис, 349.5 м2 В МФК «Башня Федерация»
ст. Выставочная
Пресненская набережная, 12
Описание
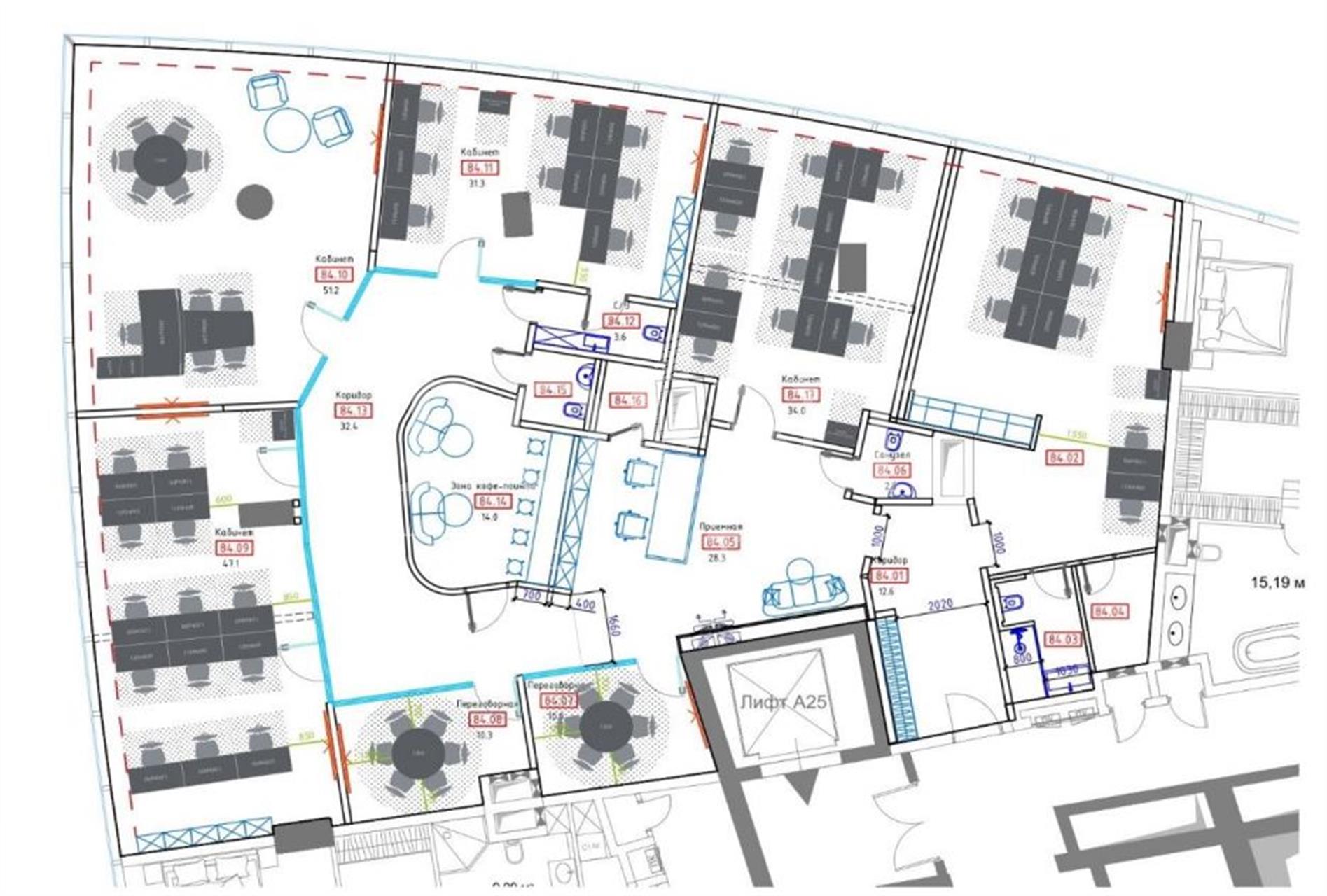
Предлагается в продажу помещение 349,5 кв.м. на 84 этаже Башни Федерации, Восток. Блок с представительским ремонтом, мокрые точки внутри. Планировка представляет из себя - входную зону ресепшн, кабинеты для сотрудников, переговорную комнату, оборудованную кухню. Отдельно выделена зона руководства со своей приемной и кабинетом руководителя с панорамным остеклением. Высокие этаж с лучшими видовыми характеристиками.
Башня Федерация
Общая информация
МФК «Федерация», возведенная на 13 площадке ММДЦ «Москва Сити» является самым высоким зданием Европы и воплощает в себе все инновационные технологии и представления о современном пространстве для жизни и работы в столице.
Обзор
МФК «Федерация» включает две башни «Запад» и «Восток» высотой в 63 и 95 этажей соответственно. Фасады строений выполнены из тонированного аргонового стекла, устойчивого к ультрафиолетовому излучению. Беспрецедентную прочность башням придает особо прочный бетон Б90, который использовался при создании фундамента и несущих конструкций. Две башни посажены на единое стилобатное основание, в котором разместились помещения коммерческого назначения. Дизайн общественных зон разрабатывали английские архитекторы. Купить апартаменты или офисное помещение в МФК «Федерация» - значит не просто подчеркнуть свой исключительный статус, а сделать весьма выгодное инвестиционное вложение.
Жилое пространство дома
В МФК "Федерация" можно купить или арендовать ультрасовременные апартаменты премиум-класса с панорамным остеклением площадью от 80 до 366 кв.м. Вы можете выбрать апартаменты с готовой отделкой или помещения без отделки. Кроме того, в башнях есть офисные и торговые помещения на продажу и в аренду площадью от 32 кв.м. С 64 по 68 этаж располагаются премиальные "Sky-офисы". Верхние 7 этажей строения занимают эксклюзивные пентхаусы.
Инженерные системы
Система управления всеми инженерными сетями МФК "Федерация" позволяет управлять в автоматическом режиме работой систем жизнеобеспечения, обеспечивая комфортную атмосферу и бесперебойную работу. В здании функционирует система приточно-вытяжной вентиляции и кондиционирования, системы очистки воды и воздуха, три автономных источника питания, оптоволоконные линии связи, а также скоростные бесшумные лифты компании "Thyssen Krupp".
Безопасность
Безопасность в МФК "Федерация" обеспечивается благодаря отлаженной работе охранных систем. В общественных зонах функционируют системы видеомониторинга, работает круглосуточный консьерж-сервис и служба ресепшн, осуществляется контроль доступа.
Инфраструктура
Башни МФК «Федерации» представляют собой идеальное пространство не только для работы, но и для жизни, ведь, не покидая их пределы, вы можете не только интересно отдохнуть, но и решить все возникающие бытовые вопросы. Подземные уровни башен занимает паркинг. В стилобатной части строений разместились предприятия сферы обслуживания: кафе, рестораны, химчистка, отделения банков, салоны красоты, и другое. Кроме того именно в МФК «Федерация» находится статусный ресторан SIXTY и самый высокий спа Wellness Club Nebo с бассейном.
Узнайте больше О бизнес-центре
Посмотрите информацию об инфраструктуре, истории и других объектах недвижимости.
ПодробнееРасположение
Пресненская набережная, 12
оставьте заявку
Скачать презентацию в pdf
Похожие предложения
Большой Саввинский переулок, 12с3
ст. Спортивная
12 мин
ст. Фрунзенская
18 мин
ПСН, 351 м2
В административном здании «Дмитровка Б. улица, 11»
Дмитровка Б. улица, 11
ст. Театральная
5 мин
ст. Кузнецкий мост
11 мин
1 этаж
Смешанная
частично с мебелью
с отделкой
в пределах садового кольца
г. Химки, ул. Молодежная
ст. Планерная ,
8 мин
ст. Сходненская ,
8 мин
новое предложение
1 этаж
Смешанная
частично с мебелью
с отделкой
ПСН, 193.7 м2
В бизнес центре «стр.1 Lucky»
2-я Звенигородская улица, 12с1
ст. Улица 1905 года
5 мин
1 этаж
Open Space
без мебели
под чистовую отделку
Ирина Трейвас
Управляющий партнёр














