- Главная
- Коммерческая элитная недвижимость
- Снять коммерческую недвижимость
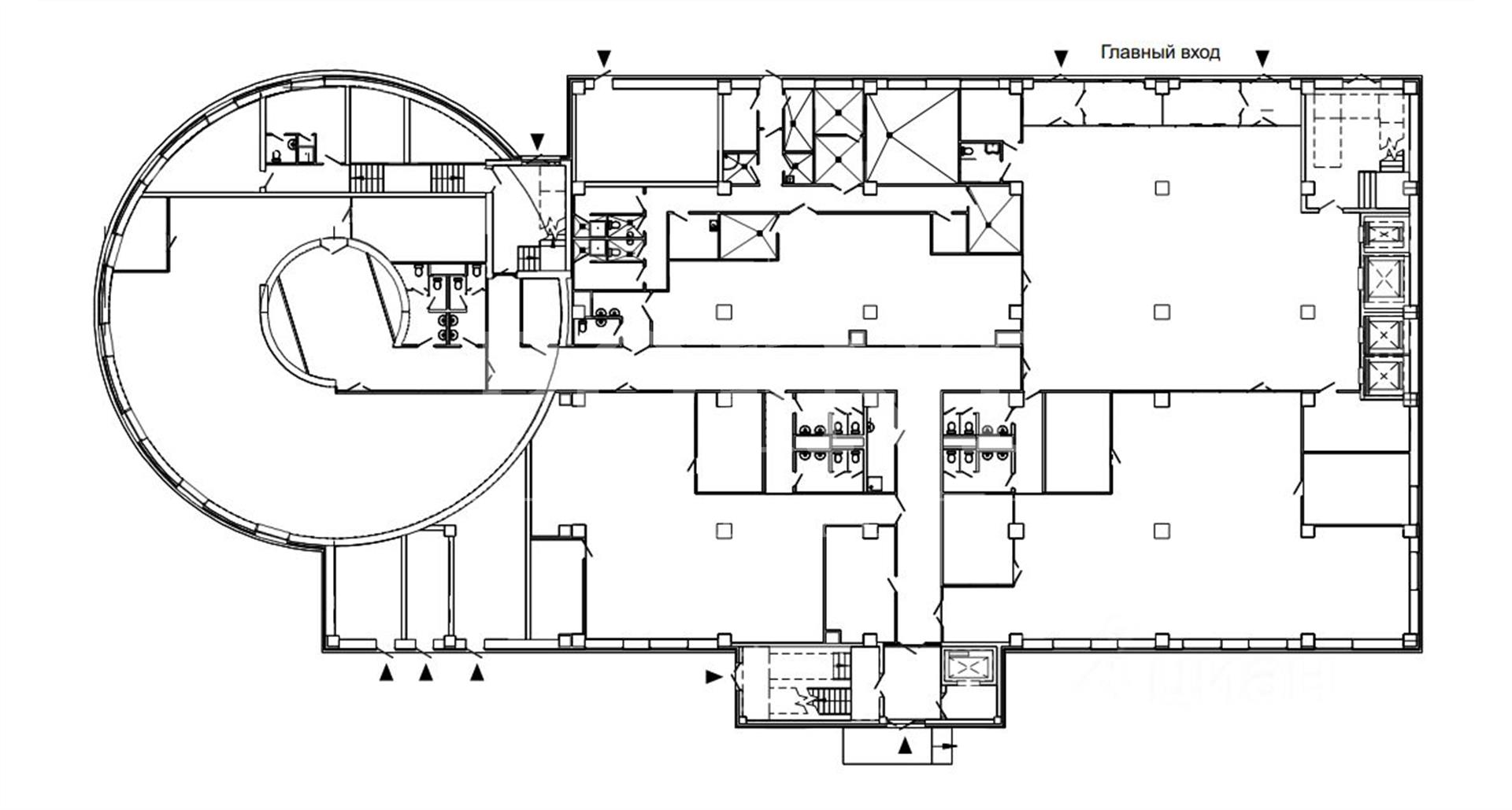
- Офис, 1996 м2 В административном здании «Новохохловская улица, 29»
ID 109487
Офис, 1996 м2 В административном здании «Новохохловская улица, 29»
Новохохловская улица, 29
Описание
В аренду предавается целиком этаж в новом административно-деловой комплексе RING PARK - готовность к заезду март 2025 г. Общая площадь этажа 1996 кв.м., приоритетно открытая планировка. Помещения передаются с готовым ремонтом в стиле лофт. Высокие потолки до 4 метров. Современное лифтовое оборудование компании Tenau. Центральная система приточно-вытяжной вентиляции с подогревом в зимнее время. Нагрузка на перекрытия- 600 кг/кв.м. Выделенная электроэнергия до 80 Вт/кв.м. Комплекс "Ринг Парк" расположен на Юго-Востоке Москвы. Ближайшая станция МЦД-2 "Калитники". Здание расположено в непосредственной близости от ТТК с удобным выездом на Волгоградский и Рязанский проспекты, а также на шоссе Энтузиастов.
оставьте заявку
Скачать презентацию в pdf
Похожие предложения
Офис, 1000 м2
В бизнес центре «Ferro Plaza»
Кржижановского улица, 14к3
ст. Профсоюзная
6 мин
ст. Новые Черемушки
15 мин
3 этаж
Смешанная
без мебели
с отделкой
Офис, 823.5 м2
В бизнес центре «Садовая Галерея»
Малая Сухаревская площадь, 12
ст. Сухаревская
1 мин
1 этаж
Смешанная
без мебели
с отделкой
Мосфильмовская улица, 8
ст. Киевская ,
9 мин
ст. Минская ,
10 мин
ст. Ломоносовский проспект ,
9 мин
ст. Парк победы ,
15 мин
новое предложение
3 этаж
Смешанная
с мебелью
с отделкой
Офис, 753.3 м2
В административном здании «Холодильный переулок, 3к1с6»
Холодильный переулок, 3к1с6
ст. Тульская
6 мин
1 этаж
Смешанная
без мебели
с отделкой
Ирина Трейвас
Управляющий партнёр













