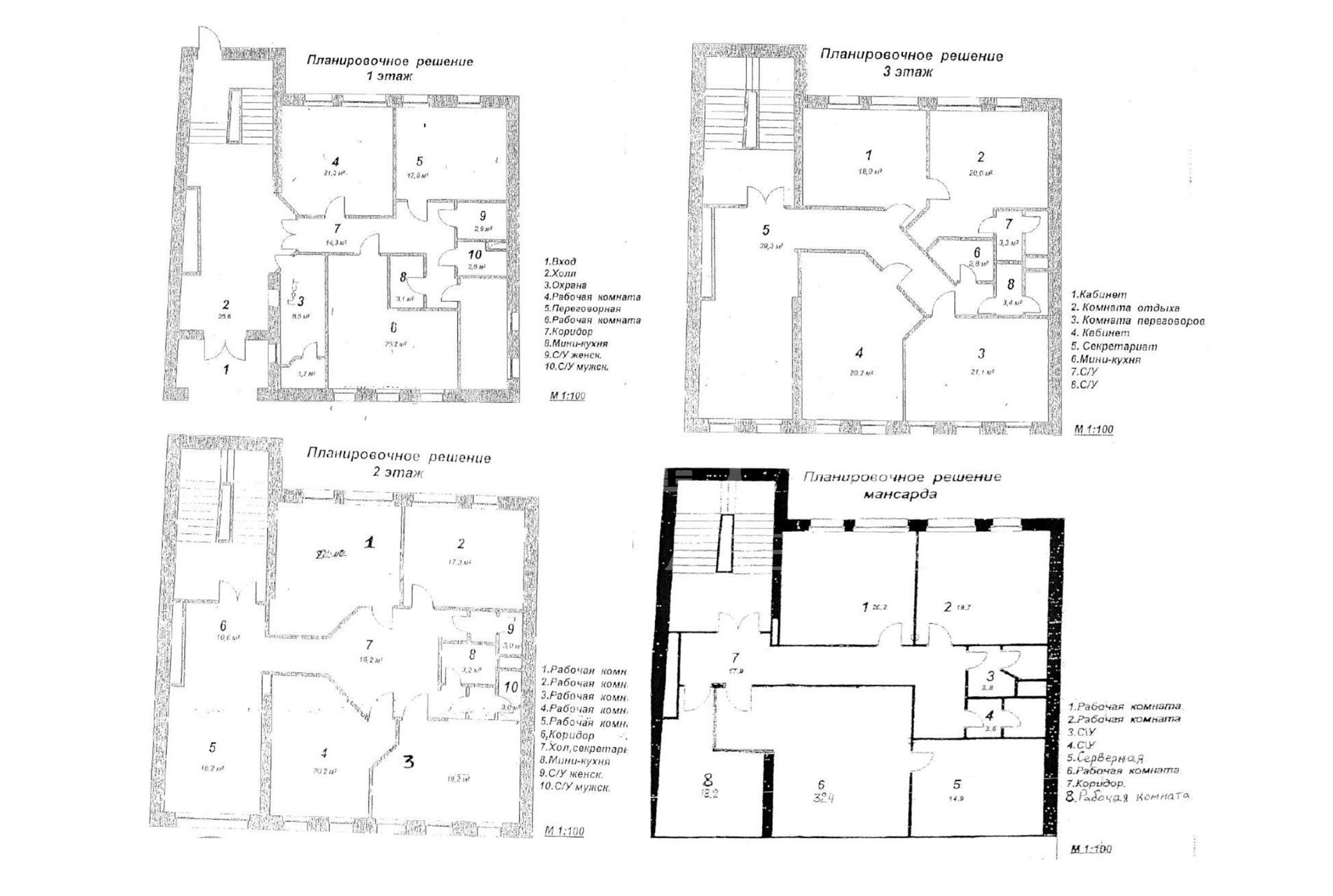
Предлагаем в аренду от собственника офисный особняк (3 этажа + мансарда) с качественным ремонтом общей площадью 742 кв.м. в 6 минутах пешком от ст.м. Сухаревская. Кабинетная планировка, на 3-м этаже ВИП блок для руководителя со своим санузлом. Высота потолков 3 метра. 4 м/м на наземной парковке во внутреннем дворе. Проведены центральные коммуникации, установлены приточно-вытяжная вентиляция и сплит-системы. В ставку не включены расходы на эксплуатацию, коммунальные платежи и НДС. Особняк расположен на 1-й линии домов в районе Чистых прудов в окружении театров, магазинов, ресторанов и уютных кафе. Рядом находятся галерея Центр Марс, театр имени Маяковского и театр драматического искусства. Удобные выезды на Цветочный бульвар, Садовое и Бульварное кольца, дорога до ТТК на машине занимает 10 минут. Электрическая мощность: 101 кВт. Налоговая №2.
оставьте заявку
Похожие предложения
В бизнес центре «Квадрат»
В бизнес центре «Ferro Plaza»
В бизнес центре «Садовая Галерея»
Ирина Трейвас
Управляющий партнёр

















