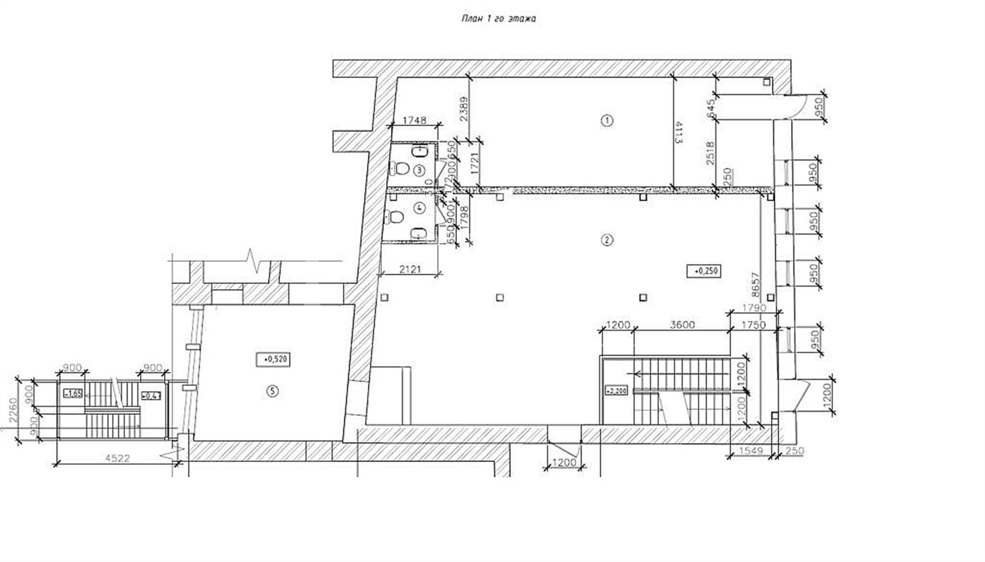
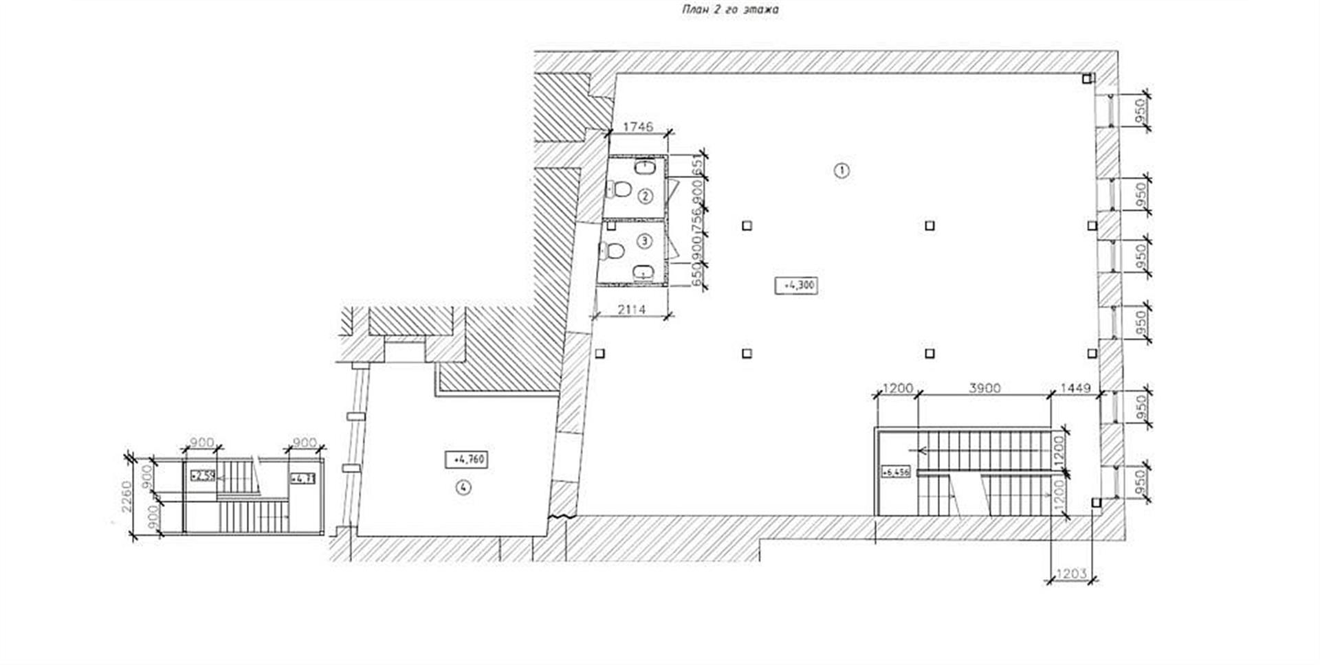
В аренду предлагается целиком здание на первой линии ул. Рождественка, расположенное рядом с центральным рынком! Организовано несколько входных зон, 2 зоны разгрузки погрузки. Здание после реконструкции, заманены все инженерные коммуникации, новые ж/б перекрытия. Подведены вода, отопление городское. Высота потолков 1 этаж - 3,6 метра, 2 этаж- 6,26 метров, цоколь с окнами - 3 метра. Мощность - 200 кВт. Состояние помещения - без отделки, арендные каникулы обсуждаются в индивидуальном порядке! Есть внутренний двор, с внешней стороны возможно организовать летнюю веранду. Возможно организовать любой вид деятельности, в т.ч. ресторан, клуб, джаз-клуб, культурный центр, офис, выставочный зал, торговый зал, галерея и тд. Супер активный пешеходный трафик, много инфрастурных и деловых объектов недвижимости в ближайшем окружении! От метро "Трубная" - 3 минуты пешком.
оставьте заявку
Похожие предложения
В административном здании «Холодильный переулок, 3к1с6»
В бизнес центре «Трехгорная мануфактура»
В особняке «Трехгорная мануфактура»
В бизнес центре «Atlantic (Атлантик)»
Ирина Трейвас
Управляющий партнёр













