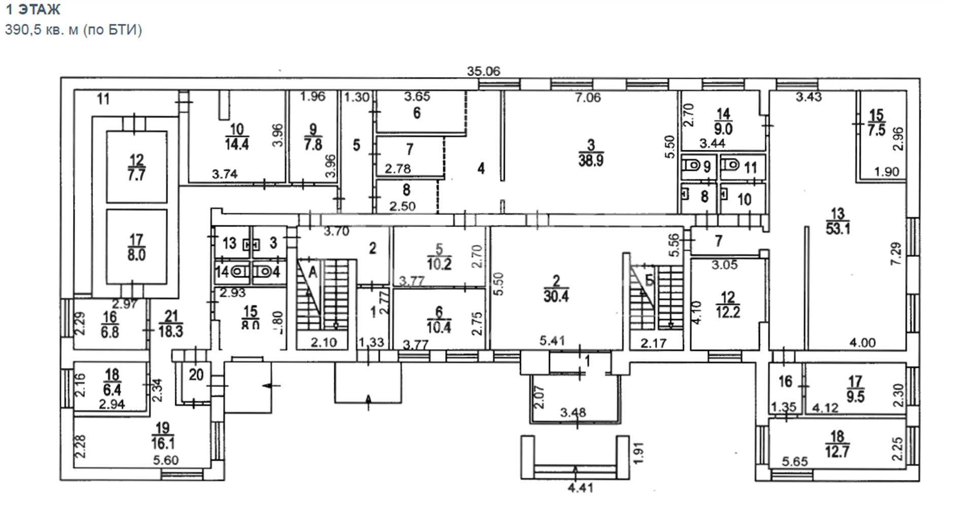
К продаже предлагается двухэтажное отдельно стоящее здание на ул. Коновалова. Общая площадь 761 кв.м., всего 2 этажа. На данный момент здание занимает арендатор - медицинский центр, возможна продажа как с Арендатором, так и без. Перекрытия - ж/б, выделенная электрическая мощность - 50 кВт. Установлены системы контроля доступа и видеонаблюдения, системы общеобменной вентиляции и кондиционирования. Огороженная и охраняемая территория, площадь з/у - 1 082 кв.м., возможно увеличение площади. Назначение з/у - эксплуатация административного здания. Обременений на объекте - нет. Организован наземный паркинг на 30 м/м. Быстрый доступ к основным транспортным магистралям: Третье транспортное кольцо, МКАД.
оставьте заявку
Похожие предложения
В особняке «Ленинская Слобода улица, 19с3»
В бизнес центре «Космодамианская набережная, 4/22кВ»
В особняке «Генерала Белова улица, 33а»
Ирина Трейвас
Управляющий партнёр




















