- Главная
- Коммерческая элитная недвижимость
- Купить коммерческую недвижимость
- Особняк, 6146 м2
Описание
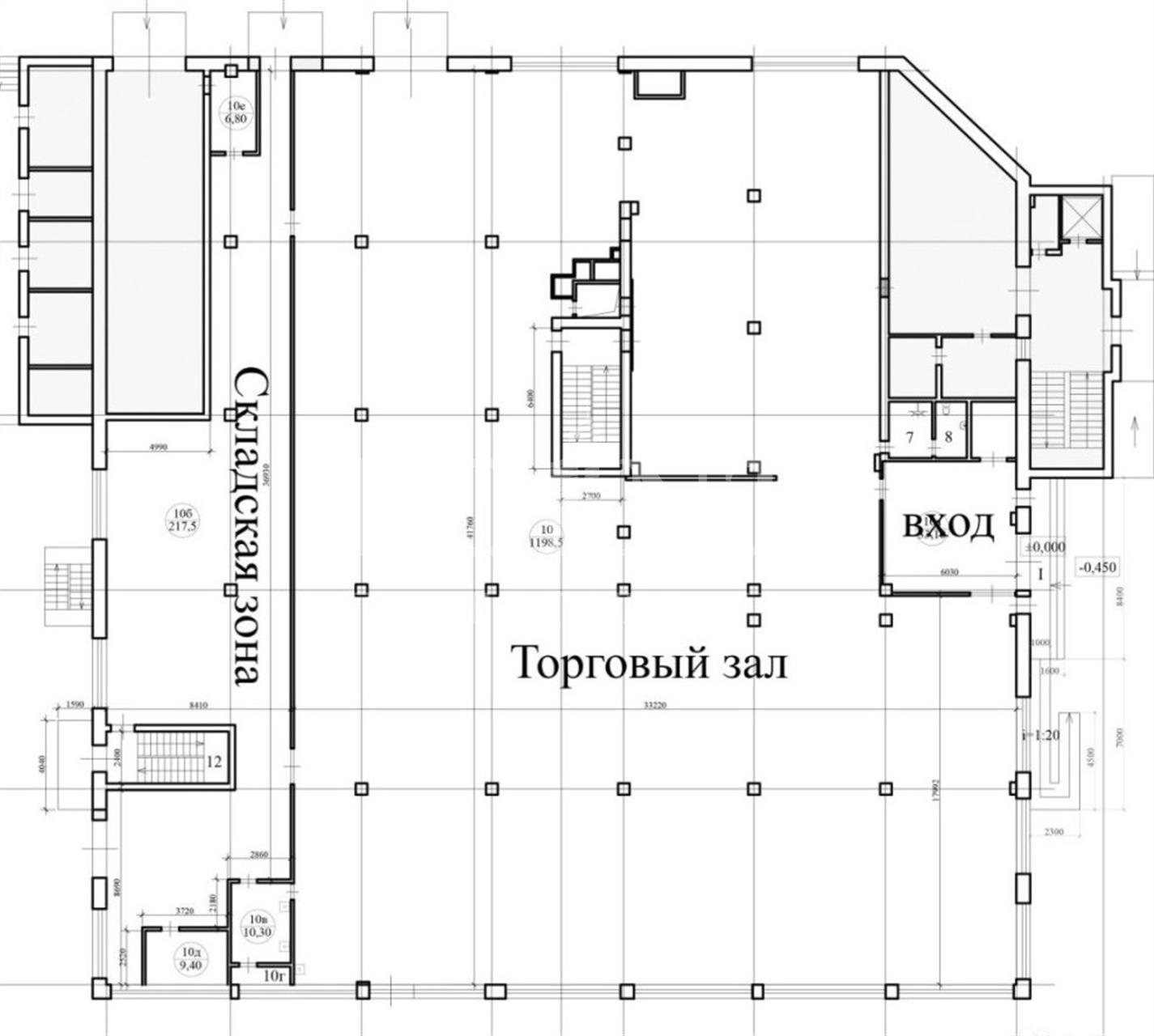
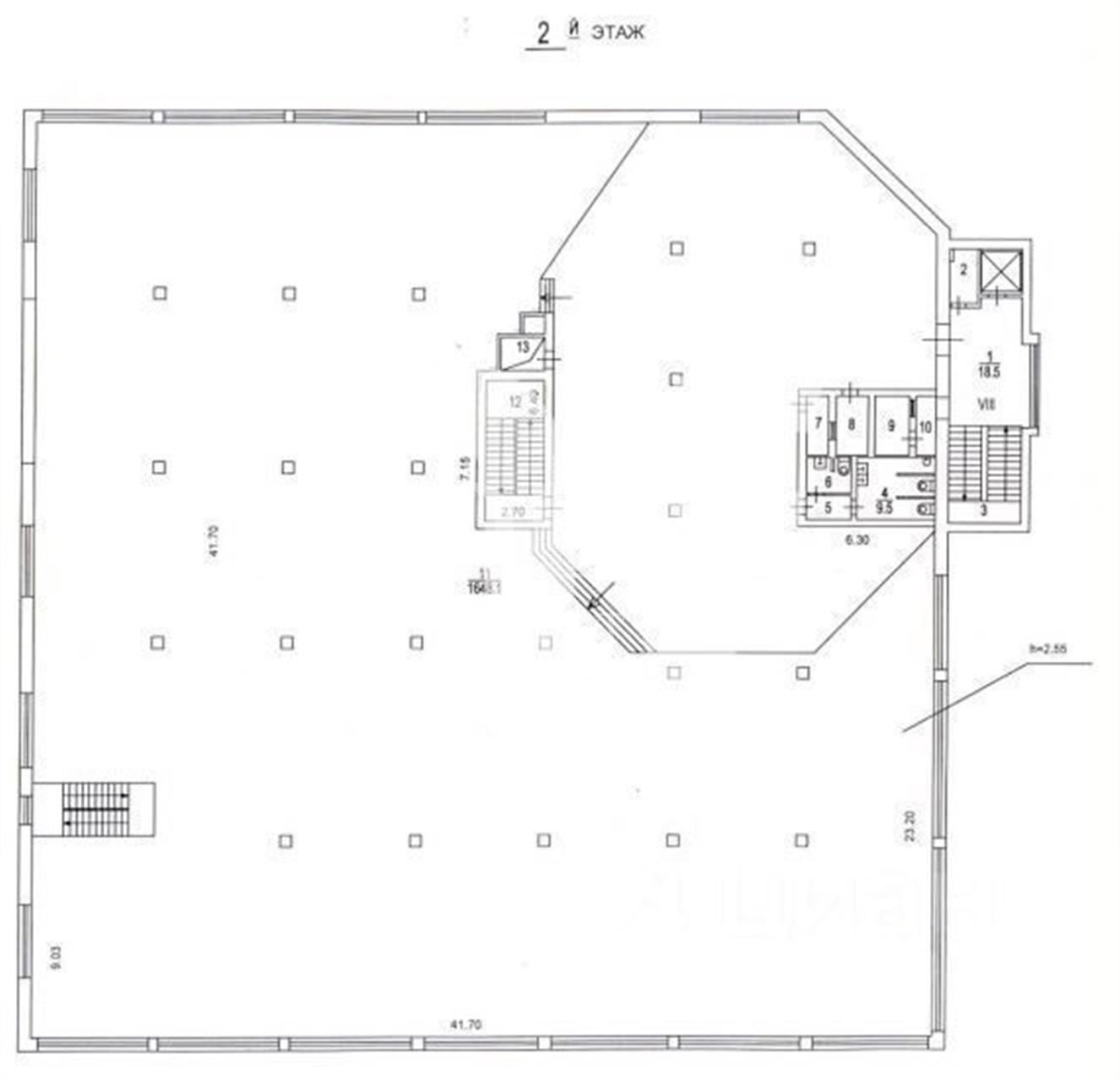
Продажа действующего 4-х этажного торгово-офисного комплекса с арендаторами. Общая площадь здания 6 146 кв.м, из них: подвал - 1713 кв.м., 1 этаж - 1772,3 кв.м., 2 этаж - 1729 кв.м., 3 и 4 этаж совместно - 896,8 кв.м., крышная котельная (технический этаж) - 35,4 кв.м. 1-й и 2-й этажи - торговое пространство, с 3-5-й этажи - офисное. В настоящий момент в аренду сдано более 80% площадей. Договора аренды заключены с разными торговыми и офисными арендаторами. Высокий показатель нагрузки на перекрытия - 1000 кг/кв.м. Площадь земельного участка 2 600 кв.м. в аренде с 2003 года. Расположение здания характеризуется хорошей транспортной доступностью как личным, так и общественным транспортом Лермонтовский Проспект (12 пешком). Рядом со зданием организована наземная парковка на 50 машино-мест. Густонаселенный район, активный пешеходный и автомобильный трафик!
оставьте заявку
Скачать презентацию в pdf
Похожие предложения
Арендный бизнес, 3584 м2
В торговом центре «МАЯК»
г. Сергиев Посад, ул. 1-я Рыбная
1 этаж
Смешанная
без мебели
с отделкой
Летниковская улица, 10с2
ст. Павелецкая
5 мин
ст. Серпуховская
15 мин
2 этаж
Кабинетная
без мебели
с отделкой
в пределах садового кольца
Офис, 486 м2
В административном здании «Волхонка улица, 9с1»
Волхонка улица, 9с1
ст. Кропоткинская
5 мин
3 этаж
Смешанная
частично с мебелью
с отделкой
в пределах садового кольца
loft
Офис, 590 м2
В административном здании «Кузнецкий Мост улица, 19с1»
Кузнецкий Мост улица, 19с1
ст. Кузнецкий мост
3 мин
3 этаж
Смешанная
с мебелью
с отделкой
в пределах садового кольца
loft
Ирина Трейвас
Управляющий партнёр









